EDI N° 7 - Terrassen Traum - Zweizimmer Wohnung
Wohnung
- Etage,
1210
Wien
Lage der Immobilie
Die Immobilie liegt im 21. Bezirk Wiens, im Nordosten Wiens, in einer gut entwickelten Wohngegend mit guter Grünraum- und Infrastrukturversorgung. Durch die Nähe zur Donauuferlandschaft und zu mehreren Grünflächen ergibt sich eine ausgewogene Mischung aus urbanem Leben und Erholung. Die Lage zeichnet sich durch eine ausgezeichnete Erreichbarkeit des öffentlichen Verkehrs aus: Mehrere Straßenbahn-, U-Bahn- und Buslinien befinden sich in unmittelbarer Nähe, mit komfortablen Verbindungen in die Innenstadt und zu wichtigen Knotenpunkten. Die Autoanbindung ist ebenfalls hervorragend: Schnellstraßen und Autobahnen sind nahe erreichbar. Eine gute Anbindung ins Zentrum ist auch gegeben. Zusätzlich bietet die Umgebung eine vollständige Nahversorgung: vielfältige Geschäfte des täglichen Bedarfs sowie Dienstleistungen wie Post, Trafiken und Ärzte sind bequem erreichbar.Beschreibung der Immobilie
Ruhe, Wohlfühlen, Abschalten – Willkommen in Ihrem neuen Zuhause.
In einer beliebten, ruhigen und grünen Wohngegend erwartet Sie eine dreigeschossige Wohnanlage mit Eigentumswohnungen, die Sie ankommen lassen und Ihnen ein Gefühl von zu Hause vermitteln.
Willkommen in Ihrem neuem zu Hause auf 64,9 Quadratmeter Wohnfläche, verteilt auf 3 Zimmer. Dazu ein praktischer Abstellraum, ein separates WC und eine großzügige Loggia von 4,61 Quadratmeter – ideal für Entspannung im Freien. Die helle, und gut durchdachte Raumaufteilung bietet komfortables Wohnen mit einem modernen Lebensgefühl. Perfekt für jeden der gerne nahe an der Natur ist aber die Annehmlichkeiten einer Großstadt schätzt.
Architektur und Gestaltung fügen sich harmonisch in die Nachbarschaft ein und verleihen dem Viertel ein frisches, ansprechendes Erscheinungsbild. Viel Licht, durchdachte Grundrisse und zeitlose Details machen EDI N° 7 zu einem Ort, an dem man sich wirklich zuhause fühlt.
Eine Tiefgarage mit 58 Stellplätzen sorgt für bequemes Parken direkt vor der Tür. Zusätzlich stehen Fahrrad- und Kinderwagenabstellräume in beiden Stiegenhäusern bereit, mit weiteren Abstellmöglichkeiten in den meisten Kellerabteilen. Für Freude draußen sorgt ein Kleinkinder- und Jugendspielplatz, sowie ein Fußballplatz der Begegnung und Bewegung möglich macht.
Das Projekt im Überblick:
> 58 Wohnungen von 30 - 80 Quadratmeter
> 1,5 - 3 Zimmerwohnungen
> Fast alle Einheiten verfügen über eine Freifläche
> 58 KFZ Abstellplätze in der Tiefgarage
> Kinderwagenraum und Spielplatz sowie Sandkiste
> Keller mit eigenem Fahrradabstellsystem
> der Verkauf erfolgt Provisionsfrei
Bei weiteren Fragen oder Informationen zu anderen Einheiten kontaktieren SIe uns gerne!
Infrastruktur / Entfernungen
Gesundheit
Arzt <1.000m
Apotheke <1.000m
Klinik <3.500m
Krankenhaus <1.000m
Kinder & Schulen
Schule <500m
Kindergarten <500m
Universität <1.500m
Höhere Schule <4.500m
Nahversorgung
Supermarkt <500m
Bäckerei <1.000m
Einkaufszentrum <2.500m
Sonstige
Geldautomat <1.000m
Bank <1.000m
Post <2.500m
Polizei <500m
Verkehr
Bus <500m
U-Bahn <4.000m
Straßenbahn <1.000m
Bahnhof <3.000m
Autobahnanschluss <3.500m
Angaben Entfernung Luftlinie / Quelle: OpenStreetMap
Eckdaten
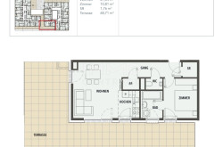
| Kaufpreis: | 393.000,00 € |
| Fläche: | 53,05 m² |
| Zimmer: | 2 |
Basisdaten zur Immobilie
| Objektnr: | 1939/162298 |
| Art: | Wohnung - Etage |
| Land: | Österreich |
| Baujahr: | 2022 |
| Zustand: | Erstbezug |
| Kaufpreis: | 393.000,00 € |
| Betriebskosten: | 110,87 € |
| MwSt Gesamt: | 11,09 € |
| Wohnfläche: | 53,05 m² |
| Zimmer: | 2 |
| Bäder: | 1 |
| WC: | 1 |
| Terrassen: | 1 |
| Heizwärmebedarf: | B 29,43 kWh/m²a |
| fGEE: | A 0,76 |
Ausstattung
Fliesen, Parkett, Fußbodenheizung, Personenaufzug, Badewanne, Wasch/Trockenraum
Internet und TV
Information zur Internet und TV Versorgung hier
Ihre persönliche Beratung
Heidi Danninger
IMMOcontract Immobilien Vermittlung GmbH
H.Danninger@IMMOcontract.at
+43 664 9639404
+43 664 9639404
