FAMILIENNEST mit GARTEN - *gefördert*4ZI - Reihenhaus mit viel Stauraum und 2Stellplätzen!
Haus
- Reiheneckhaus,
3500
Imbach
Lage der Immobilie
Imbach in der Marktgemeinde Senftenberg Eine touristisch erschlossene Gemeinde mit viel Sportmöglichkeiten, Heurigen und dem NUHR Gesundheitszentrum Kindergarten und Volksschule Busverbindung nach Krems ca.15minBeschreibung der Immobilie
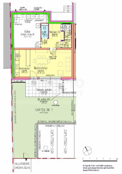
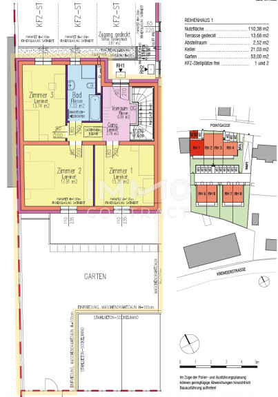
Willkommen in Ihrem neuen Zuhause! Dieses liebevoll gestaltete 4-Zimmer-Reihenhaus bietet mit rund 110,38 m² Wohnnutzfläche ausreichend Raum für Familie, Freunde und gemeinsames Leben.
Im Erdgeschoss erwartet Sie ein großzügiger, lichtdurchfluteter Wohn- und Essbereich mit direktem Zugang zur gedeckten Terrasse – perfekt für gemütliche Familienabende oder entspannte Stunden im Freien. Ein praktischer Außenabstellraum sorgt für zusätzlichen Stauraum.
Der 53 m² große Eigengarten lädt Kinder zum Spielen und Erwachsene zum Entspannen ein – ein echtes Highlight für alle, die Natur und Privatsphäre schätzen.
Im Obergeschoss befinden sich 3 behagliche Schlafräume, die genügend Rückzugsmöglichkeiten für Groß und Klein bieten. Die durchdachte Raumaufteilung schafft ein harmonisches Wohngefühl und lässt keine Wünsche offen.
Highlights auf einen Blick:
110,38 m² Wohnnutzfläche
4 großzügige Zimmer
Wannen/Duschbad, 2WCs
3 Schlafzimmer
überdachte Terrasse mit Außenabstellraum
53m² Eigengarten
familienfreundliche Lage
modernes, gemütliches Ambiente
Technikraum mit Kondenstrockner, Stauraum für Waschmaschine und Hausrat
Wärmepumpe mit Wohnraumbelüftung, Photovoltaik
2Parkplätze
Kaufpreis gesamt: € 408.462,72,--
Eigenmittel: € 165.214,70
2KFZ Stellplätze - Eigenmittel: € 40.846,28
+ WBF-Darlehen: € 202.401,74
Gesamteigenmittel € 206.060,98
Monatliche Kosten:
WBF Darlehen 31J.Laufz. € 202.401,74 - € 277,90
BK, Instandhaltung, Verwaltung € 273,05
---------------------------------------------------------------
monatlicher Gesamtaufwand: € 550,95
Dieses Reihenhaus vereint Wohnkomfort, Funktionalität und Charme – ideal für Familien, die ein Zuhause mit Herz suchen.
Infrastruktur / Entfernungen
Gesundheit
Arzt <1.500m
Apotheke <3.500m
Klinik <3.500m
Krankenhaus <4.000m
Kinder & Schulen
Schule <1.500m
Kindergarten <1.500m
Universität <3.500m
Höhere Schule <3.500m
Nahversorgung
Supermarkt <2.000m
Bäckerei <2.500m
Einkaufszentrum <4.000m
Sonstige
Geldautomat <2.500m
Bank <2.500m
Post <2.000m
Polizei <3.500m
Verkehr
Bus <500m
Autobahnanschluss <3.500m
Bahnhof <3.500m
Flughafen <4.000m
Angaben Entfernung Luftlinie / Quelle: OpenStreetMap
Eckdaten
| Kaufpreis: | 408.462,72 € |
| Fläche: | 110,38 m² |
| Zimmer: | 4 |
Basisdaten zur Immobilie
| Objektnr: | 1939/132816 |
| Art: | Haus - Reiheneckhaus |
| Land: | Österreich |
| Kaufpreis: | 408.462,72 € |
| Provision: | Provision bezahlt der Abgeber. |
| Wohnfläche: | 110,38 m² |
| Zimmer: | 4 |
| Bäder: | 1 |
| WC: | 2 |
| Terrassen: | 1 |
| Stellplätze: | 2 |
| Garten: | 53,00 m² |
| Keller: | 21,03 m² |
| Heizwärmebedarf: | 24,50 kWh/m²a |
| fGEE: | 0,48 |
Ausstattung
Fliesen, Laminatboden, Solarenergie, Fußbodenheizung, Wasch/Trockenraum
Internet und TV
Information zur Internet und TV Versorgung hier
Ihre persönliche Beratung
Doris Schneider-Hiesberger
IMMOcontract Immobilien Vermittlung GmbH
D.Schneider-Hiesberger@IMMOcontract.at
Partner der IMMOcontract
+43 664 81 91 81 5
