moderne Altbauwohnung - 2 Zimmer - Erstbezug
Wohnung
- Etage,
1170
Wien
Lage der Immobilie
Die Wohnung überzeugt durch ihre zentrale und dennoch ruhige Lage. Zahlreiche Einkaufsmöglichkeiten, Cafés und Restaurants befinden sich in unmittelbarer Nähe. Die öffentliche Verkehrsanbindung ist ausgezeichnet und ermöglicht eine schnelle und bequeme Verbindung in die Wiener Innenstadt.Beschreibung der Immobilie
Ein Aufzug sorgt für barrierefreien Zugang, und ein eigenes Kellerabteil steht zur Verfügung. Zusätzlich gibt es im Keller praktische Abstellmöglichkeiten für Fahrräder und Kinderwagen.
Die Liegenschaft wurde in ihrer Gesamtheit saniert, inklusive Dachgeschossausbau, sodass das Haus nun in zeitgemäßer Eleganz erstrahlt. Neben der hier beschriebenen Wohnung sind noch weitere Einheiten verfügbar, die nach Fertigstellung bezogen werden können.
Nutzen Sie die Chance, diese gepflegte Wohnung als Erstbezug zu erwerben und vereinbaren Sie noch heute einen Besichtigungstermin.
Attraktive Gebührenbefreiung für Käufer:innen
Seit 1. Juli 2024 profitieren Immobilienkäufer:innen in Österreich von einer Gebührenbefreiung für Grundbuch- und Pfandrechtseintragungen:
• Befreiung bis € 500.000 Kaufpreis pro Person
• Gilt für Kaufverträge ab April 2024
• Voraussetzung: Hauptwohnsitzmeldung in der Immobilie
• Bei Finanzierung: über 90 % des Kredits für Kauf oder Sanierung
• Ersparnis: 1,1 % Grundbuchgebühr und 1,2 % Pfandrechtseintragung
Infrastruktur / Entfernungen
Gesundheit
Arzt <500m
Apotheke <500m
Klinik <500m
Krankenhaus <1.500m
Kinder & Schulen
Schule <500m
Kindergarten <500m
Universität <1.500m
Höhere Schule <1.500m
Nahversorgung
Supermarkt <500m
Bäckerei <500m
Einkaufszentrum <1.000m
Sonstige
Geldautomat <500m
Bank <500m
Post <500m
Polizei <1.000m
Verkehr
Bus <500m
U-Bahn <1.500m
Straßenbahn <500m
Bahnhof <1.500m
Autobahnanschluss <4.000m
Angaben Entfernung Luftlinie / Quelle: OpenStreetMap
Eckdaten
| Objektnr: | 1939/133241 |
| Art: | Wohnung - Etage |
| Land: | Österreich |
| Baujahr: | 1900 |
| Kaufpreis: | 289.000,00 € |
| Provision: | 3 % vom Kaufpreis |
| Betriebskosten: | 87,51 € |
| MwSt Gesamt: | 8,75 € |
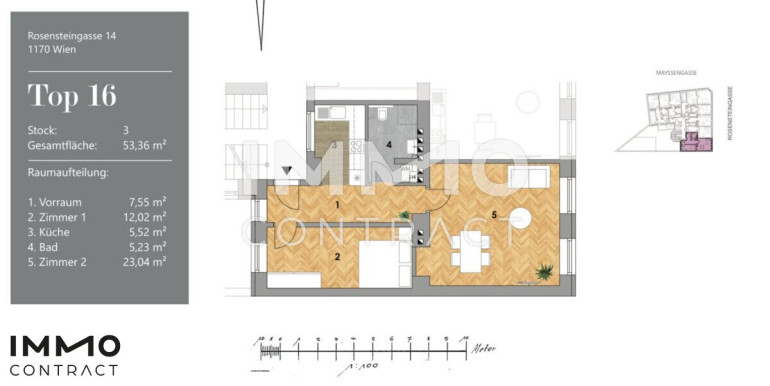
| Wohnfläche: | 53,36 m² |
| Zimmer: | 2 |
| Bäder: | 1 |
| Heizwärmebedarf: | B 35,77 kWh/m²a |
Ausstattung
Fliesen, Parkett, Gas, Personenaufzug
Internet und TV
Information zur Internet und TV Versorgung hier
Ihre persönliche Beratung
Heidi Danninger
IMMOcontract Immobilien Vermittlung GmbH
E h.danninger@immocontract.at
T +43 664 9639404
