Luxuriös Wohnen mit Hotelservice
Wohnung
- Dachgeschoß,
1010
Wien
Lage der Immobilie
Die direkte Lage am Ring bietet eine rasche Verbindung zum Flughafen, die öffentliche Anbindung ist mit den U-Bahn-Linien U2, U4 sowie den Straßenbahnlinien am Ring und dem Citybus sehr gut.Beschreibung der Immobilie
Eckdaten
| Kaufpreis: | auf Anfrage |
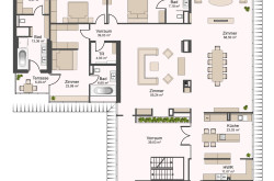
| Fläche: | 337,00 m² |
| Zimmer: | 4 |
Basisdaten zur Immobilie
| Objektnr: | IVW-PRIME-19-02337 |
| Art: | Wohnung - Dachgeschoß |
| Land: | Österreich |
| Zustand: | Neuwertig |
| Möbliert: | Voll |
| Kaufpreis: | auf Anfrage |
| Provision: | 3% des Kaufpreises zzgl. 20% USt. |
| Betriebskosten: | 1.964,00 € |
| Wohnfläche: | 337,00 m² |
| Zimmer: | 4 |
| Bäder: | 3 |
| WC: | 4 |
| Terrassen: | 2 |
| Stellplätze: | 1 |
| Keller: | 15,00 m² |
| Heizwärmebedarf: | B 44,00 kWh/m²a |
Ausstattung
Kamin, Personenaufzug, Tiefgarage
Internet und TV
Information zur Internet und TV Versorgung hier
Ihre persönliche Beratung
Massimo Saccomanno
OTTO Immobilien GmbH
m.saccomanno@otto.at
004366488533219
004366488533219
F 004315137778
