Unique living in Döbling
Haus
- Villa,
1190
Wien
Lage der Immobilie
Über 50 Heurige laden in der nahen Umgebung auf ein Gläschen „Wiener G’mischten Satz“ aus den eigenen Weingärten ein. Anbindung an das öffentliche Verkehrsnetz bieten die Buslinien 35A und 43B. Mit dem Auto gelangt man in rund 25 Minuten in das Stadtzentrum. Zur Erholung bieten sich die umliegenden Weinberge des Hackenbergs an oder der Pötzleinsdorfer Schlosspark.Beschreibung der Immobilie
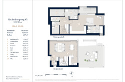
Eckdaten
| Kaufpreis: | 1.789.000,00 € |
| Fläche: | 129,29 m² |
| Zimmer: | 4 |
Basisdaten zur Immobilie
| Objektnr: | IVW-22-04656/2 |
| Art: | Haus - Villa |
| Land: | Österreich |
| Baujahr: | 2022 |
| Zustand: | Erstbezug |
| Kaufpreis: | 1.789.000,00 € |
| Provision: | 3% des Kaufpreises zzgl. 20% USt. |
| Wohnfläche: | 129,29 m² |
| Nutzfläche: | 129,29 m² |
| Grundstücksfl.: | 275,00 m² |
| Zimmer: | 4 |
| Bäder: | 2 |
| WC: | 4 |
| Balkone: | 1 |
| Terrassen: | 1 |
| Stellplätze: | 1 |
| Garten: | 191,71 m² |
| Heizwärmebedarf: | B 45,10 kWh/m²a |
Ausstattung
Fußbodenheizung, Carport, Sauna, Swimmingpool
Internet und TV
Information zur Internet und TV Versorgung hier
Ihre persönliche Beratung
Sonja Kaspar
OTTO Immobilien GmbH
s.kaspar@otto.at
00436648548515
00436648548515
F 004315137778
