Modernes City-Penthouse mit Dachterrasse und Stephansdom-Blick
Wohnung
- Dachgeschoß,
1010
Wien
Lage der Immobilie
Dieses exklusive Penthouse liegt in einer ruhigen Seitengasse des 1. Bezirks, nur wenige Schritte von der Freyung entfernt. Umgeben von Wiens besten Restaurants, Boutiquen und kulturellen Highlights wie der Hofburg und der Staatsoper, genießen Sie hier höchsten Wohnkomfort. Die Anbindung an das öffentliche Verkehrsnetz ist exzellent, während elegante Parks und erstklassige Infrastruktur für eine unvergleichliche Lebensqualität sorgen. Eine Lage, die Luxus, Ruhe und urbanes Leben perfekt vereint.Beschreibung der Immobilie
Eckdaten
| Kaufpreis: | 5.490.000,00 € |
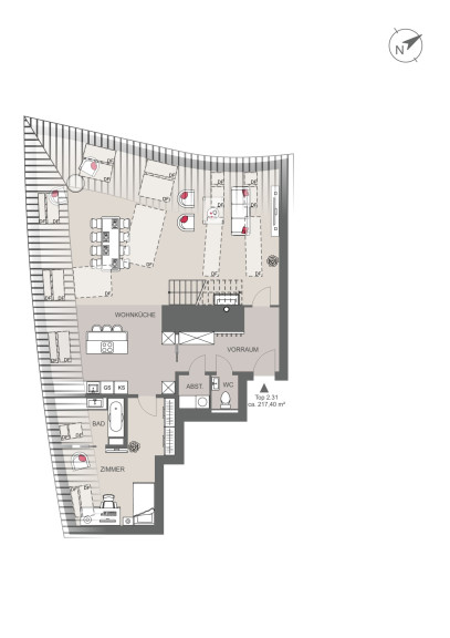
| Fläche: | 217,00 m² |
| Zimmer: | 4 |
Basisdaten zur Immobilie
| Objektnr: | IVW-22-04904 |
| Art: | Wohnung - Dachgeschoß |
| Land: | Österreich |
| Baujahr: | 2019 |
| Zustand: | Erstbezug |
| Möbliert: | Teil |
| Kaufpreis: | 5.490.000,00 € |
| Provision: | 3% des Kaufpreises zzgl. 20% USt. |
| Betriebskosten: | 1.169,05 € |
| Heizkosten: | 380,48 € |
| Wohnfläche: | 217,00 m² |
| Zimmer: | 4 |
| Bäder: | 3 |
| WC: | 4 |
| Stellplätze: | 2 |
| Heizwärmebedarf: | A 23,00 kWh/m²a |
| fGEE: | A 0,76 |
Ausstattung
Fußbodenheizung, Kamin, Personenaufzug, Kabel/Satelliten-TV
Internet und TV
Information zur Internet und TV Versorgung hier
Ihre persönliche Beratung
Massimo Saccomanno
OTTO Immobilien GmbH
m.saccomanno@otto.at
004366488533219
004366488533219
F 004315137778
