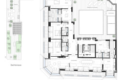
Luxus-Penthouse nahe der Wiener Staatsoper
Wohnung
- Dachgeschoß,
1010
Wien
Lage der Immobilie
Das Palais Herzfeld befindet sich inmitten des begehrten ersten Bezirks, umgeben von kulturellen Schätzen, exquisiten Restaurants und erstklassigen Einkaufsmöglichkeiten. Genießen Sie die Lebendigkeit der Innenstadt, während Sie gleichzeitig die Ruhe und Eleganz eines historischen Palastes erleben.Beschreibung der Immobilie
Eckdaten
| Kaufpreis: | 15.900.000,00 € |
| Fläche: | 367,51 m² |
| Zimmer: | 5 |
Basisdaten zur Immobilie
| Objektnr: | IVW-24-11646/3 |
| Art: | Wohnung - Dachgeschoß |
| Land: | Österreich |
| Baujahr: | 1869 |
| Zustand: | Erstbezug |
| Kaufpreis: | 15.900.000,00 € |
| Provision: | 3% des Kaufpreises zzgl. 20% USt. |
| Wohnfläche: | 367,51 m² |
| Zimmer: | 5 |
| Bäder: | 4 |
| WC: | 5 |
| Terrassen: | 1 |
| Stellplätze: | 3 |
| Keller: | 6,48 m² |
| Heizwärmebedarf: | C 80,00 kWh/m²a |
| fGEE: | C 1,24 |
Ausstattung
Fußbodenheizung, Personenaufzug, Swimmingpool
Internet und TV
Information zur Internet und TV Versorgung hier
Ihre persönliche Beratung
Massimo Saccomanno
OTTO Immobilien GmbH
m.saccomanno@otto.at
004366488533219
004366488533219
F 004315137778
