Einfamilienhaus in bester Maurer Lage
Haus
- Villa,
1230
Wien, Liesing
Lage der Immobilie
Der Heurigen und Villenort Mauer liegt im Süden von Wien und gehört zum Bezirk Liesing. Die Region ist bekannt für ihre idyllische Lage und ihren ländlichen Charakter, während sie gleichzeitig eine enge Verbindung zur pulsierenden Metropole bietet. Die öffentliche Anbindung ist durch die Buslinien 56a und 60a gegeben, die Station ist nur wenige Gehminuten entfernt. Sämtliche Einkaufsmöglichkeiten befinden sich in der näheren Umgebung. Schulen, Kindergärten und diverse medizinische Einrichtungen bieten eine perfekte Infrastruktur. Gleichzeitig gibt es vielfältige Möglichkeiten der Freizeitgestaltung durch den Lainzer Tiergarten und eine buntes Gastronomieangebot.Beschreibung der Immobilie
Eckdaten
| Kaufpreis: | 1.495.000,00 € |
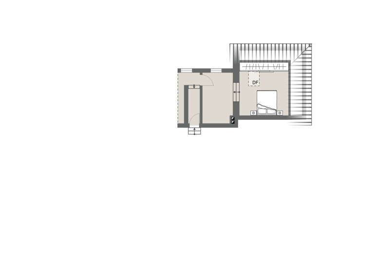
| Fläche: | 280,00 m² |
| Zimmer: | 7 |
Basisdaten zur Immobilie
| Objektnr: | IVW-K-25-12830 |
| Art: | Haus - Villa |
| Land: | Österreich |
| Baujahr: | 1890 |
| Kaufpreis: | 1.495.000,00 € |
| Provision: | 3 % des Kaufpreises zzgl. 20% USt. |
| Wohnfläche: | 280,00 m² |
| Grundstücksfl.: | 1.657,00 m² |
| Zimmer: | 7 |
| Terrassen: | 1 |
| Garten: | 1.377,00 m² |
Internet und TV
Information zur Internet und TV Versorgung hier
Ihre persönliche Beratung
Sonja Kaspar
OTTO Immobilien GmbH
s.kaspar@otto.at
00436648548515
00436648548515
F 004315137778
