Immobilie merken

MC 15 - Ein Bürogebäude, das Effizienz, Innovation und Umweltbewusstsein vereint.

Büro / Praxis - Bürofläche, 1110 Wien

Lage der Immobilie

öffentliche Verkehrsanbindung: U-Bahn: U3 Bus: 72a, 76a Individualverkehr: Autobahn: A23, A4

Beschreibung der Immobilie

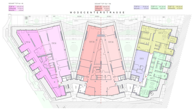
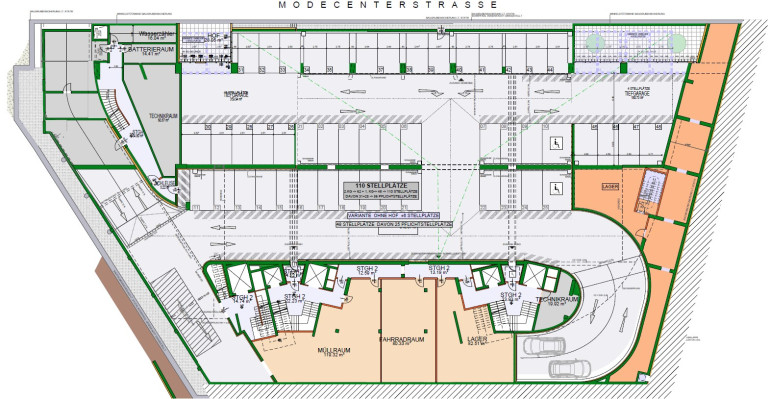
Mitten im dynamischen Süden Wiens, in der Modecenterstraße, entsteht mit MC15 ein zukunftsweisendes Bürogebäude, das Nachhaltigkeit, Design und Funktionalität auf höchstem Niveau vereint. In unmittelbarer Nähe zur U-Bahnlinie U3 und bestens angebunden an das städtische und überregionale Verkehrsnetz bietet dieses Projekt eine einmalige Kombination aus urbaner Lage, moderner Architektur und innovativer Technik. MC15 überzeugt mit visionären technischen Lösungen, die weit über den Standard hinausgehen. Die Toiletten werden über eine eigene Brunnenanlage gespeist, für Heizung und Kühlung sorgen effiziente Wärmepumpen, gespeist durch Tiefenbohrungen. Eine großzügige Photovoltaikanlage am Dach produziert saubere Energie, die gemeinschaftlich von allen Mietern genutzt werden kann. Ergänzt wird dieses Konzept durch eine moderne Klima- und Lüftungsanlage, die für höchsten Komfort sorgt – ganz im Zeichen eines nachhaltigen, ressourcenschonenden Betriebs. Das Gebäude erstreckt sich über sechs oberirdische Geschosse und zwei Untergeschoße und bietet flexibel gestaltbare Büroflächen, die Raum für verschiedenste Nutzungskonzepte lassen. Großzügige Terrassen auf mehreren Ebenen schaffen eine angenehme Verbindung zwischen Arbeitswelt und Freiraum – Orte der Erholung, Kommunikation oder Inspiration. Die Architektur mit begrünten Fassadenelementen unterstreicht den Anspruch des Gebäudes, Arbeitsqualität mit Umweltbewusstsein zu verbinden. In der hauseigenen Tiefgarage stehen ausreichend PKW-Stellplätze zur Verfügung, viele davon bereits mit E-Lademöglichkeit ausgestattet. Gastronomische Einrichtungen sind derzeit in Planung und werden künftig zur weiteren Attraktivierung des Standorts beitragen. Die Fertigstellung ist für Ende 2025 vorgesehen – noch können individuelle Ausstattungswünsche berücksichtigt werden. MC15 ist mehr als ein Bürogebäude. Es ist ein Statement für zukunftsorientiertes Arbeiten in einem Umfeld, das Effizienz, Komfort und Nachhaltigkeit in Einklang bringt.

Eckdaten

Objektnr: IVG-O-11160/Ges
Art: Büro / Praxis - Bürofläche
Land: Österreich
Baujahr: 2024
Zustand: Erstbezug
Miete / m²: 18,50 €
Provision: 3 BMM zzgl. 20 % USt.
Nutzfläche: 8.702,00 m²
Bürofläche: 8.702,00 m²

Ausstattung

Zentralheizung, Personenaufzug



Internet und TV

Information zur Internet und TV Versorgung hier




Immobilie anfragen




Ihre persönliche Beratung

OTTO Immobilien GmbH

Philipp Granabetter, BSc (WU) MA

OTTO Immobilien GmbH

p.granabetter@otto.at

00436648516441

00436648516441

F 004315137778


 - Immobilen Makler

OTTO Immobilien GmbH, Standort Hauptbahnhof, QBC3, Gertrude-Fröhlich-Sandner-Str 3, 1100 Wien, AUSTRIA

https://www.otto.at