Slowakei - Senec: perfekt gelegene Logistikhalle / provisionsfreie Anmietung
Halle / Lager / Produktion
,
903 01
Senec
Lage der Immobilie
- 20 km von Bratislava - direkt an der Ausfahrt D1 / SenecBeschreibung der Immobilie
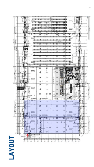
Eckdaten
| Fläche: | 7.226,00 m² |
Basisdaten zur Immobilie
| Objektnr: | IVG-I-10870 |
| Art: | Halle / Lager / Produktion |
| Land: | Slowakei |
| Baujahr: | 2019 |
| Zustand: | Gepflegt |
| Nutzfläche: | 7.226,00 m² |
| Gesamtfläche: | 7.226,00 m² |
| Lagerfläche: | 6.700,00 m² |
| Bürofläche: | 526,00 m² |
Ausstattung
Rampe
Internet und TV
Information zur Internet und TV Versorgung hier
Ihre persönliche Beratung
Dipl. Wirt. Ing. (FH) Wolfgang von Poellnitz
OTTO Immobilien GmbH
w.vonpoellnitz@otto.at
00436645116220
00436645116220
F 004315137778
