Immobilie merken
Lage der Immobilie
Einkaufsmöglichkeiten, Restaurants und auch öffentliche Verkehrsanbindungen sind in wenigen Gehminuten erreichbar. Die nahe Triesterstraße verbindet den Standort mit der Stadtautobahn A23, der A2 und der S1. Öffentliche Anbindung: U-Bahn: U6 - Station Philadelphiabrücke Bus: 7A, 15A Individualverkehr: A23, A2, S1Beschreibung der Immobilie
Das Projekt Inno Center Retro verbindet anspruchsvolle Architektur mit nachhaltigem Nutzen. Eine dynamisch gestaltete Fassade, großzügige Glaselemente und flexible, intelligente Grundrisse zeichnen dieses Gebäude aus. Mit dem ressourcenschonenden und betriebskostensparenden Planungskonzept wird eine hervorragende Zertifizierung angestrebt.
Moderne Ausstattung, hochwertige Materialien und ein innovatives Leuchtkonzept schaffen ein einzigartiges Raumerlebnis. Lichtdurchflutete Räume bringen einen zusätzlichen Wohlfühlfaktor in das Arbeitsumfeld.
Eckdaten
| Gesamtmiete: | 12.627,51 € |
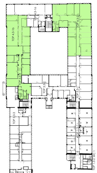
| Fläche: | 617,18 m² |
Basisdaten zur Immobilie
| Objektnr: | IVG-O-10725/28 |
| Art: | Büro / Praxis - Bürofläche |
| Land: | Österreich |
| Baujahr: | 2018 |
| Gesamtmiete: | 12.627,51 € |
| Kaltmiete (netto): | 8.702,24 € |
| Kaltmiete: | 10.442,69 € |
| Miete / m²: | 14,10 € |
| Provision: | 3 BMM zzgl. 20 % USt. |
| Betriebskosten: | 1.820,68 € |
| Nutzfläche: | 617,18 m² |
| Bürofläche: | 617,18 m² |
| Stellplätze: | 432 |
| Heizwärmebedarf: | B 26,70 kWh/m²a |
| fGEE: | A 0,59 |
Internet und TV
Information zur Internet und TV Versorgung hier
Ihre persönliche Beratung
Helmut Wanjek
OTTO Immobilien GmbH
h.wanjek@otto.at
00436648549193
00436648549193
F 004315137778
