enna – Das Work-Life-Building
Büro / Praxis
- Bürofläche,
1030
Wien
Lage der Immobilie
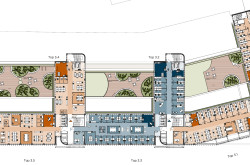
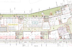
enna liegt in prominenter Lage unmittelbar an der Erdberger Lände. Aufgrund der direkten Lage an dieser Hauptverkehrsachse verfügt das Gebäude über eine sehr gute Visibilität bei gleichzeitiger Nähe zur Innenstadt. In unmittelbarer Nähe finden sich für alle Lebenslagen passende und unterschiedliche Optionen. Die Nähe zum Donaukanal und zum Prater und die Nahversorgung mit Geschäften, Lokalen, Schulen und Kindergärten garantieren urbane Lebensqualität mit idyllischem Flair. So kann nicht nur enna selbst mit lebensnaher Vielfalt punkten, sondern auch sein direktes Umfeld. Nur wenige Schritte entfernt finden sich viele öffentliche Verkehrsmittel, die Sie jederzeit von A nach B bringen: die U3 Haltestelle Kardinal-Nagl-Platz ist fußläufig erreichbar. Das Gebäude ist zudem optimal mit dem Fahrrad erreichbar. Allen Fahrradfahrern steht im Erdgeschoss ein Fahrradraum mit Duschen zur Verfügung. Der Donaukanal lädt zu Spaziergängen oder Lauftraining in der Mittagspause ein. Zu Fuß: - Donaukanal 0 Min - U3 Kardinal-Nagl-Platz 5 Min - Bus 77A Lechnerstraße 5 Min - Bus 80A Ludwig Koeßler Platz 6 Min - Prater Jesuitenwiese (Park) 12 Min Mit der Bahn: - Rochusmarkt 11 Min - Wien Mitte The Mall 15 Min - Stephansplatz 15 Min - Messe Wien 22 Min - Wien Hauptbahnhof 26 Min Mit dem Rad: - Prater Jesuitenwiese (Park) 4 Min - Rochusmarkt 5 Min - Wien Mitte The Mall 6 Min - Messe Wien 8 Min - Stephansplatz 13 Min Mit dem Auto: - Rochusmarkt 7 Min - Messe Wien 7 Min - Wien Mitte The Mall 8 Min - Wien Hauptbahnhof 10 Min - Flughafen Schwechat 12 Min - Stephansplatz 15 MinBeschreibung der Immobilie
Eckdaten
| Gesamtmiete: | 29.298,00 € |
| Fläche: | 1.285,00 m² |
Basisdaten zur Immobilie
| Objektnr: | IVG-O-11390/4 |
| Art: | Büro / Praxis - Bürofläche |
| Land: | Österreich |
| Gesamtmiete: | 29.298,00 € |
| Kaltmiete (netto): | 24.415,00 € |
| Kaltmiete: | 29.298,00 € |
| Miete / m²: | 19,00 € |
| Provision: | 3 BMM zzgl. 20 % USt. |
| Nutzfläche: | 1.285,00 m² |
| Bürofläche: | 1.285,00 m² |
Ausstattung
Fernwärme, Personenaufzug
Internet und TV
Information zur Internet und TV Versorgung hier
Ihre persönliche Beratung
Philipp Granabetter, BSc (WU) MA
OTTO Immobilien GmbH
p.granabetter@otto.at
00436648516441
00436648516441
F 004315137778
