Altbaubüro Nähe Stephansplatz

Büro / Praxis - Bürofläche, 1010 Wien

Lage der Immobilie

Das zentral gelegene Büro befindet sich in einem sehr gut erhaltenen Gebäude mit repräsentativem Eingang, parallel zur Kärntner Straße auf Höhe Kaufhaus Steffl. VERKEHRSANBINDUNG Öffentlich: - Ubahn: U1, U3 Station Stephansplatz - Straßenbahn: D, 1, 2, 62, 71 Station Kärntner Ring/ Oper - Bus: 2A Station Plankengasse Individualverkehr: - Mitten im Stadtzentrum - Seilerstätten Garage - 1 Minute zur Kärntner Straße

Beschreibung der Immobilie

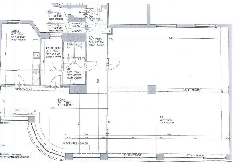
Dieses verfügbare Büro befindet sich in einem wunderschönen Altbau in unmittelbarer Nähe zum Stephansdom und besticht durch seine perfekte Lage im Herzen Wiens. Es erstreckt sich über ca. 218 m² und verfügt über lichtdurchflutete Räume durch seine großzügigen Fenster. Beheizt wird es mittels Gasetagenheizung und es wurde Parkettboden verlegt.

Eckdaten

Objektnr: IVG-O-12064/1.4
Art: Büro / Praxis - Bürofläche
Land: Österreich
Zustand: Gepflegt
Gesamtmiete: 5.246,32
Kaltmiete (netto): 3.926,88 €
Kaltmiete: 4.712,26 €
Miete / m²: 18,00 €
Provision: 3 BMM
Betriebskosten: 445,05 €
Nutzfläche: 218,16 m²
Bürofläche: 218,16 m²
Heizwärmebedarf:  E  174,72 kWh/m²a
Immobilie merken Exposé

Ausstattung

Etagenheizung, Personenaufzug


Internet und TV

Information zur Internet und TV Versorgung hier


Immobilie anfragen


Ihre persönliche Beratung

OTTO Immobilien GmbH

Magdalena Lemut, BSc (WU)

OTTO Immobilien GmbH

E m.lemut@otto.at

T 00436764803674

H 00436764803674

F 004315137778


 - Immobilen Makler

OTTO Immobilien GmbH, Standort Hauptbahnhof, QBC3, Gertrude-Fröhlich-Sandner-Str 3, 1100 Wien, AUSTRIA

https://www.otto.at