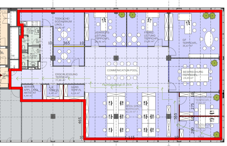
Offen gestaltete Bürofläche

Büro / Praxis - Bürofläche, 1200 Wien

Lage der Immobilie

Durch die optimale Verkehrsanbindung zählt dieses Bürogebäude zu einem der erstklassigen Business Locations in Wien. Der Zugang zur U-Bahn-Linie U6 befindet sich in unmittelbarer Nähe, wodurch das Shopping & Entertainment Center „Millennium City” in nur 5 Minuten erreicht werden kann, dessen Angebot reichhaltige Mittagssnacks, Geschäfte, ein Fitnessstudio, sowie auch ein Kino umfasst. Innerhalb von nur 10 Minuten ist die Wiener Innenstadt erreichbar. Weiters erschließt der nahe gelegene S-Bahn-Knotenpunkt Handelskai das große Einzugsgebiet des Wiener Umlandes.

Beschreibung der Immobilie

Das 2007 errichtete Bürogebäude bietet „Pure Office Value“ mit einer Gesamtmietfläche von rd. 22.049 m². Das BC 20 gliedert sich ein zwei Baukörper, wobei der 7-geschoßige Bauteil Alpha rd. 15.186 m² und der 9-geschoßige Bauteil Beta 6.863 m² vermietbare Fläche umfasst. Unter dem Bürogebäude finden in einer 2-geschoßigen Tiefgarage 415 Pkws Platz. Somit sind für Geschäftspartner, Kunden und Angestellte immer ausreichende Parkflächen vorhanden. Die Büroflächen sind flexibel gestaltbar und variabel teilbar; die Trakttiefe von 16 m ermöglicht maximale Offenheit, lichtdurchflutete Räume und optimal auf die Mieterbedürfnisse zugeschnittene Büroorganisationsformen. Effiziente Energienutzung wird durch eine energiesparende Bauteilkühlung gewährleistet. Für den Individualkomfort der Nutzer bestehen öffenbare Fenster. Bei Interesse können über unseren Garagenbetreiber der Firma Optimus zusätzlich Stellplätze angemietet werden.

Eckdaten

Objektnr: IVG-O-03844/B3
Art: Büro / Praxis - Bürofläche
Land: Österreich
Gesamtmiete: 7.635,96
Kaltmiete (netto): 4.856,20 €
Kaltmiete: 5.827,44 €
Miete / m²: 14,50 €
Provision: 3 BMM zzgl. 20% USt.
Betriebskosten: 1.507,10 €
Nutzfläche: 334,91 m²
Bürofläche: 334,91 m²
Heizwärmebedarf:  C  63,00 kWh/m²a
Immobilie merken Exposé

Ausstattung

Fernwärme, Personenaufzug


Internet und TV

Information zur Internet und TV Versorgung hier


Immobilie anfragen


Ihre persönliche Beratung

OTTO Immobilien GmbH

Isabella Plessl

OTTO Immobilien GmbH

E i.plessl@otto.at

T 004366488590403

H 004366488590403

F 004315137778


 - Immobilen Makler

OTTO Immobilien GmbH, Standort Hauptbahnhof, QBC3, Gertrude-Fröhlich-Sandner-Str 3, 1100 Wien, AUSTRIA

https://www.otto.at