Moderne Bürofläche Nähe Austria Campus
Büro / Praxis
- Bürofläche,
1020
Wien
Lage der Immobilie
Der Standort Lassallestraße bietet durch die unmittelbare Nähe zum Verkehrsknotenpunkt Praterstern sowie zur Station Vorgartenstraße eine optimale Anbindung an das öffentliche Verkehrsnetz sowie an die Wiener Innenstadt. Ebenso verbindet ein Radweg den Standort sowohl mit den inneren Bezirken, als auch Wiens größtes Erholungsgebiet, der Donauinsel. Nahe gelegene Supermärkte und gastronomische Betriebe bieten eine hervorragende Infrastruktur Öffentliche Verkehrsanbindung: - U Bahn: U1 Station Praterstern - Bus: 11A, 80A, 82A Station Praterstern - Straßenbahn: N, 0, 5, 21 Station Praterstern - S-Bahn: diverse Linien Station PratersternBeschreibung der Immobilie
Eckdaten
| Gesamtmiete: | 18.312,43 € |
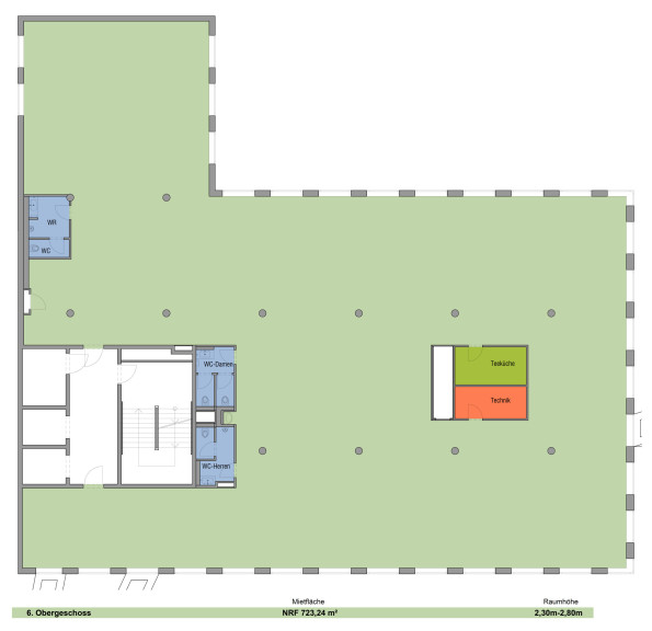
| Fläche: | 723,24 m² |
Basisdaten zur Immobilie
| Objektnr: | IVG-O-03185/4-6 |
| Art: | Büro / Praxis - Bürofläche |
| Land: | Österreich |
| Baujahr: | 2013 |
| Gesamtmiete: | 18.312,43 € |
| Kaltmiete (netto): | 11.933,46 € |
| Kaltmiete: | 14.320,15 € |
| Miete / m²: | 16,50 € |
| Provision: | 3 BMM zzgl. 20% USt. |
| Betriebskosten: | 3.326,90 € |
| Nutzfläche: | 723,24 m² |
| Bürofläche: | 723,24 m² |
| Heizwärmebedarf: | B 31,70 kWh/m²a |
| fGEE: | B 0,77 |
Ausstattung
Fernwärme, Personenaufzug
Internet und TV
Information zur Internet und TV Versorgung hier
Ihre persönliche Beratung
Helmut Wanjek
OTTO Immobilien GmbH
h.wanjek@otto.at
00436648549193
00436648549193
F 004315137778
