Silo Next
Büro / Praxis
- Bürofläche,
1230
Wien
Lage der Immobilie
Der Standort besticht durch seine hervorragende Lage mit erstklassiger Verkehrsanbindung – öffentlich wie individuell – und mit der geplanten wie bestehenden Infrastruktur. Die Stadtautobahnen und die SCS, Österreichs größtes Shopping- und Entertainmentcenter, sind in wenigen Minuten erreichbar. Zahlreiche Parkmöglichkeiten in den Tiefgaragen machen die Anreise für Mitarbeiter und Gäste attraktiv. Die campusartige Struktur zwischen den drei einzelnen Gebäuden schafft unterschiedlich gestaltete grüne Freiräume. Die Silo Liesing Offices vereinen Business, Urbanität sowie Lebensqualität auf höchstem Niveau und werden als zukunftsweisender Unternehmensstandort neue Maßstäbe im Süden Wiens setzen. ÖFFENTLICHE VERKEHRSANBINDUNG - U-Bahn: U6 - Station Perfektastraße befindet sich in unmittelbarer Nähe - Bus: 64A, 255, 266, N64Beschreibung der Immobilie
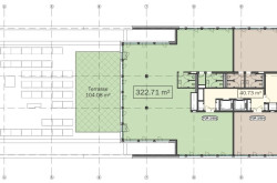
Eckdaten
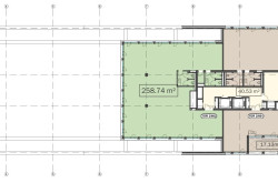
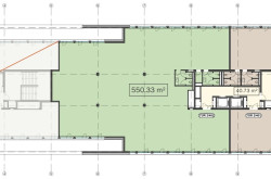
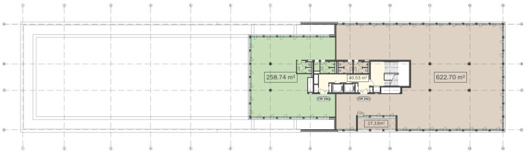
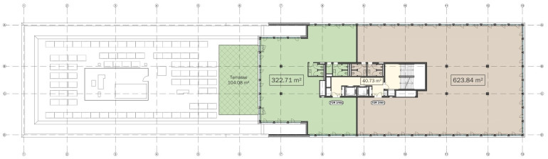
| Fläche: | 1.174,17 m² |
Basisdaten zur Immobilie
| Objektnr: | IVG-O-12105/4 |
| Art: | Büro / Praxis - Bürofläche |
| Land: | Österreich |
| Nutzfläche: | 1.174,17 m² |
| Bürofläche: | 1.174,17 m² |
Internet und TV
Information zur Internet und TV Versorgung hier
Ihre persönliche Beratung
Philipp Granabetter, BSc (WU) MA
OTTO Immobilien GmbH
p.granabetter@otto.at
00436648516441
00436648516441
F 004315137778
