Fabrik1230 - Das neue Grätzlzentrum
Büro / Praxis
- Bürofläche,
1230
Wien
Beschreibung der Immobilie
Eckdaten
| Gesamtmiete: | 717,00 € |
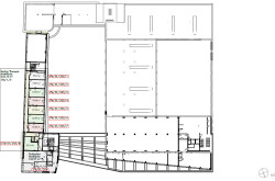
| Fläche: | 23,92 m² |
Basisdaten zur Immobilie
| Objektnr: | IVG-O-12326/01/202/3 |
| Art: | Büro / Praxis - Bürofläche |
| Land: | Österreich |
| Baujahr: | 2024 |
| Gesamtmiete: | 717,00 € |
| Kaltmiete (netto): | 597,50 € |
| Kaltmiete: | 717,00 € |
| Miete / m²: | 25,00 € |
| Provision: | 3 BMM zzgl. 20% USt |
| Nutzfläche: | 23,92 m² |
| Bürofläche: | 23,92 m² |
| Stellplätze: | 32 |
| Heizwärmebedarf: | A 61,40 kWh/m²a |
| fGEE: | A++ 0,63 |
Ausstattung
Personenaufzug
Internet und TV
Information zur Internet und TV Versorgung hier
Ihre persönliche Beratung
Magdalena Lemut, BSc (WU)
OTTO Immobilien GmbH
m.lemut@otto.at
00436764803674
00436764803674
F 004315137778
