Repräsentative Geschäftsfläche nähe Kaufhaus Steffl
Einzelhandel
- Ladenlokal,
1010
Wien
Lage der Immobilie
Öffentliche Anbindung: U-Bahn: U1/U3 (Stephansplatz - 300m) und U3 (Stubentor - 650m) Straßenbahn: 2 (Weihburggasse - 500m) Bus: 2A (Kärntner Straße - 380m) Individualverkehr: Direkte Zufahrt möglich Kurzparkzone Garagen: Seilerstätten Garage (350m), City Garage (350m)Beschreibung der Immobilie
Eckdaten
| Gesamtmiete: | 8.084,18 € |
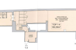
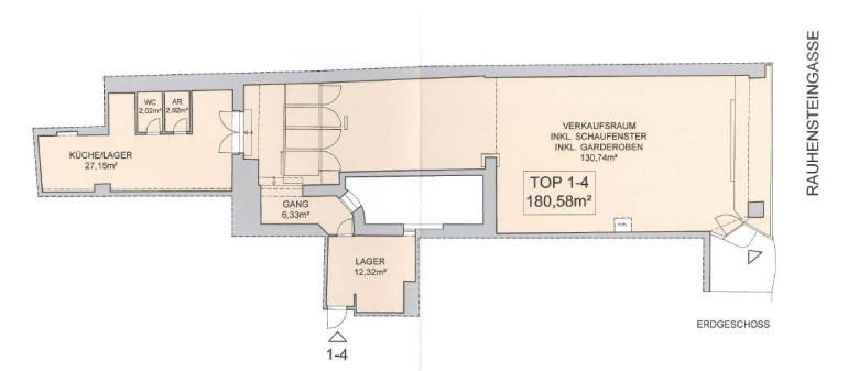
| Fläche: | 180,58 m² |
Basisdaten zur Immobilie
| Objektnr: | IVG-R-12352 |
| Art: | Einzelhandel - Ladenlokal |
| Land: | Österreich |
| Gesamtmiete: | 8.084,18 € |
| Kaltmiete (netto): | 6.320,30 € |
| Kaltmiete: | 7.584,36 € |
| Miete / m²: | 35,00 € |
| Provision: | 3 BMM zzgl. 20% USt. |
| Betriebskosten: | 340,16 € |
| Nutzfläche: | 180,58 m² |
| Verkaufsfläche: | 130,74 m² |
| Heizwärmebedarf: | D 136,50 kWh/m²a |
| fGEE: | C 1,11 |
Internet und TV
Information zur Internet und TV Versorgung hier
Ihre persönliche Beratung
Nicole Ivancich, MA
OTTO Immobilien GmbH
n.ivancich@otto.at
00436649643476
00436649643476
F 004315137778
