FORUM SCHÖNBRUNN BTI
Büro / Praxis
- Bürohaus,
1120
Wien
Lage der Immobilie
Die Lage des Forums Schönbrunn an der Grünbergstraße bietet ideale Möglichkeiten und eine lückenlose und bequeme Erreichbarkeit. Direkt am Schnittpunkt der Süd- und Westachse sowie der U-Bahnlinie U4 ist die Bürofläche ideal erreichbar sowie bestens an das Stadtzentrum angebunden. Ein besonderes Highlight ist mit Sicherheit der gegenüberliegende Schlosspark. Dieser bietet sich für sonnige Mittagspausen, Spaziergänge und sportliche Aktivitäten an. Die Infrastruktur rund um den Bürostandort ist hervorragend entwickelt. In den Untergeschossen stehen ausreichend Stellplätze und Lagerflächen zur Verfügung. Geschäfte des täglichen Bedarfs und ein netter Fundus an lokaler Gastronomie ist nur wenigen Gehminuten entfernt. VERKEHRSANBINDUNGEN: Öffentliche Anbindung: - U-Bahn: U4 Schönbrunn - Bus: 10A, 63A - Straßenbahn: 10, 60Beschreibung der Immobilie
Eckdaten
| Gesamtmiete: | 16.173,18 € |
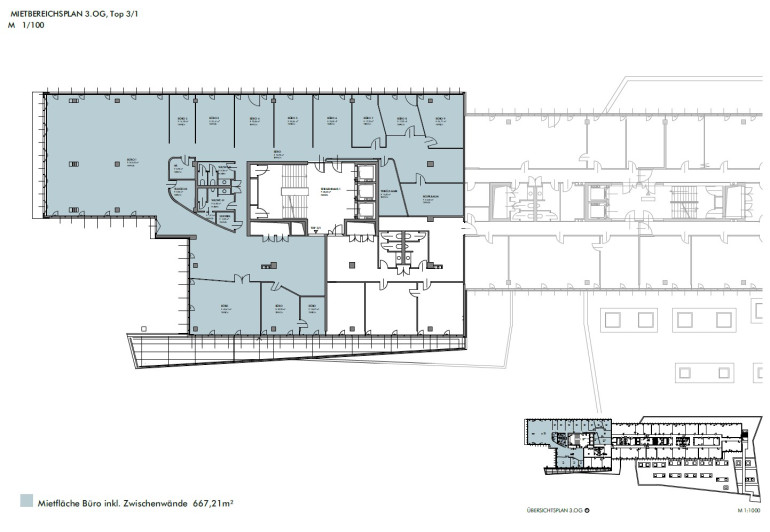
| Fläche: | 667,21 m² |
Basisdaten zur Immobilie
| Objektnr: | IVG-O-04462/3 |
| Art: | Büro / Praxis - Bürohaus |
| Land: | Österreich |
| Baujahr: | 2008 |
| Zustand: | Gepflegt |
| Gesamtmiete: | 16.173,18 € |
| Kaltmiete (netto): | 10.341,76 € |
| Kaltmiete: | 12.410,11 € |
| Miete / m²: | 15,50 € |
| Provision: | 3 BMM zzgl. 20 % USt. |
| Betriebskosten: | 3.135,89 € |
| Nutzfläche: | 667,21 m² |
| Bürofläche: | 667,21 m² |
| Heizwärmebedarf: | B 33,98 kWh/m²a |
| fGEE: | 0,77 |
Ausstattung
Fernwärme, Personenaufzug
Internet und TV
Information zur Internet und TV Versorgung hier
Ihre persönliche Beratung
Philipp Granabetter, BSc (WU) MA
OTTO Immobilien GmbH
p.granabetter@otto.at
00436648516441
00436648516441
F 004315137778
