Marxbox - Büro- und Laborflächen
Büro / Praxis
- Bürofläche,
1030
Wien
Lage der Immobilie
Der unmittelbar vor dem Gebäude liegende Robert Hochner Park bietet Freiraum für erholsame Arbeitspausen. Die restaurierten Schlachthaushallen sorgen für ein ganz besonderes Flair und beherbergen das moderne Restaurant "Marx Restauration" sowie demnächst eine Cafeteria. Die strategisch perfekte Lage sorgt für eine optimale Verkehrsanbindung in die Innenstadt bzw. zum Flughafen. Öffentliche Verkehrsanbindung: U-Bahn: U3 Schlachthausgasse Straßenbahn: 18, 71 Autobus: 74A Schnellbahn: S7 (Flughafenschnellbahn) Individualverkehr: A 23, A4 Autobahnabfahrt St. MarxBeschreibung der Immobilie
Eckdaten
| Gesamtmiete: | 23.443,20 € |
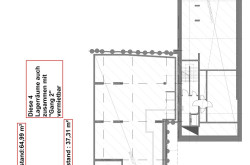
| Fläche: | 1.184,00 m² |
Basisdaten zur Immobilie
| Objektnr: | IVG-O-02216/22-24 |
| Art: | Büro / Praxis - Bürofläche |
| Land: | Österreich |
| Zustand: | Gepflegt |
| Gesamtmiete: | 23.443,20 € |
| Kaltmiete (netto): | 19.536,00 € |
| Kaltmiete: | 23.443,20 € |
| Miete / m²: | 16,50 € |
| Provision: | 3 BMM zzgl. 20 % USt. |
| Nutzfläche: | 1.184,00 m² |
| Bürofläche: | 1.184,00 m² |
| Stellplätze: | 1 |
| Heizwärmebedarf: | B 41,40 kWh/m²a |
| fGEE: | C 1,06 |
Ausstattung
Personenaufzug
Internet und TV
Information zur Internet und TV Versorgung hier
Ihre persönliche Beratung
Isabella Plessl
OTTO Immobilien GmbH
i.plessl@otto.at
004366488590403
004366488590403
F 004315137778
