Marxbox - Büro- und Laborflächen

Büro / Praxis - Bürofläche, 1030 Wien

Lage der Immobilie

Der unmittelbar vor dem Gebäude liegende Robert Hochner Park bietet Freiraum für erholsame Arbeitspausen. Die restaurierten Schlachthaushallen sorgen für ein ganz besonderes Flair und beherbergen das moderne Restaurant "Marx Restauration" sowie demnächst eine Cafeteria. Die strategisch perfekte Lage sorgt für eine optimale Verkehrsanbindung in die Innenstadt bzw. zum Flughafen. Öffentliche Verkehrsanbindung: U-Bahn: U3 Schlachthausgasse Straßenbahn: 18, 71 Autobus: 74A Schnellbahn: S7 (Flughafenschnellbahn) Individualverkehr: A 23, A4 Autobahnabfahrt St. Marx

Beschreibung der Immobilie

Die MARXBOX ist ein weiterer Bauteil des Stadtentwicklungsgebietes Neu Marx, das schrittweise zu einem modernen Büro- und Forschungsstandort entwickelt wird. Der Standort bietet ein ideales Arbeitsumfeld und konnte in den letzten Jahren so prominente Mieter wie T-Mobile, Intercell, BEKO, Arsanis, Akron, Affiris Emerson/Artesyn sowie die Fachhochschule für Biotechnologie gewinnen. Bei der Innengestaltung der Büroeinheiten können mieterspezifische Wünsche weitgehend berücksichtigt und umgesetzt werden. Aufgrund der erhöhten Raumhöhe von ca. 3 Metern sind die unteren Geschossflächen für Laborflächen konzipiert. Im Zuge der 1. Baustufe wurden rund 6.318 m² und in der 2. Baustufe rund 4.650 m² hochwertige Büroflächen auf 6 Geschossen realisiert. Die beiden Baustufen können durch Verbindungsbrücken miteinander verbunden werden. In weiteren Baustufen wird das Projekt auf insgesamt ca. 40.000 m² Nutzfläche erweitert. Die Büroflächen zeichnen sich durch ihre hochwertige Ausstattung und effiziente Flächenstruktur aus. Das verbrauchsoptimierte Gebäude zeichnet sich durch eine Umwelt- und Ressourcen schonende Bauweise aus und wird mit Betonkernaktivierung ausgestattet. Verbrauchsoptimierte Haustechnik trägt zu behaglichem Raumklima bei. Innovative Konzepte und ein optimales Zusammenspiel zwischen Architektur und Haustechnik tragen zur Senkung der laufenden Betriebskosten bei. Die oberen Geschosse verfügen über großzügige Terrassenflächen und bieten einen traumhaften Blick über die ganze Stadt. Erleben Sie den einzigartigen Charakter eines Business Campus mitten in der Stadt!

Eckdaten

Objektnr: IVG-O-02216/62
Art: Büro / Praxis - Bürofläche
Land: Österreich
Zustand: Gepflegt
Gesamtmiete: 3.603,60
Kaltmiete (netto): 2.359,50 €
Kaltmiete: 2.831,40 €
Miete / m²: 16,50 €
Provision: 3 BMM zzgl. 20 % USt.
Betriebskosten: 643,50 €
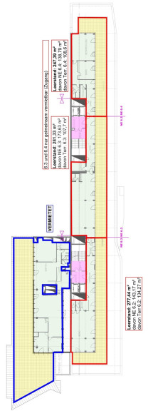
Nutzfläche: 143,00 m²
Bürofläche: 143,00 m²
Stellplätze: 1
Heizwärmebedarf:  B  41,40 kWh/m²a
fGEE:  C  1,06
Immobilie merken Exposé

Ausstattung

Personenaufzug


Internet und TV

Information zur Internet und TV Versorgung hier


Immobilie anfragen


Ihre persönliche Beratung

OTTO Immobilien GmbH

Isabella Plessl

OTTO Immobilien GmbH

E i.plessl@otto.at

T 004366488590403

H 004366488590403

F 004315137778


 - Immobilen Makler

OTTO Immobilien GmbH, Standort Hauptbahnhof, QBC3, Gertrude-Fröhlich-Sandner-Str 3, 1100 Wien, AUSTRIA

https://www.otto.at