Gewerbefläche mit viel Potential
Einzelhandel
- Ladenlokal,
1220
Wien
Lage der Immobilie
Die Fläche befindet sich in einem aufstrebenden Stadtteil und profitiert von der Nähe zur U1-Station Kagraner Platz. Dadurch ist sie optimal an den öffentlichen Verkehr angebunden und von Kunden, Patienten oder Geschäftspartnern schnell erreichbar. Öffentliche Anbindung: U-Bahn: U1 Kagraner Platz Bus: 22A, 24A, 31A Straßenbahn: 26Beschreibung der Immobilie
Eckdaten
| Miete / m²: | 11,50 € |
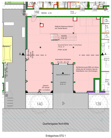
| Fläche: | 344,53 m² |
Basisdaten zur Immobilie
| Objektnr: | IVG-O-12397/Gastro |
| Art: | Einzelhandel - Ladenlokal |
| Land: | Österreich |
| Baujahr: | 2022 |
| Zustand: | Erstbezug |
| Miete / m²: | 11,50 € |
| Provision: | 3 BMM zzgl. 20% USt. |
| Nutzfläche: | 344,53 m² |
| Verkaufsfläche: | 344,53 m² |
| Heizwärmebedarf: | 41,91 kWh/m²a |
Internet und TV
Information zur Internet und TV Versorgung hier
Ihre persönliche Beratung
Isabella Plessl
OTTO Immobilien GmbH
i.plessl@otto.at
004366488590403
004366488590403
F 004315137778
