Repräsentatives Altbaubüro beim Museumsquartier
Büro / Praxis
- Bürofläche,
1010
Wien
Lage der Immobilie
Die Bürofläche befindet sich in einer der begehrtesten Lagen Wiens – unmittelbar beim Museumsquartier. Die Umgebung vereint urbanes Flair mit historischer Eleganz und bietet höchste Lebens- und Arbeitsqualität. Die beliebte Mariahilfer Straße, Wiens bekannteste Einkaufsstraße, ist nur wenige Schritte entfernt und lädt zu entspannten Mittagspausen oder After-Work-Besorgungen ein. Gleichzeitig erreichen Sie in nur wenigen Gehminuten den 1. Bezirk, das historische Zentrum Wiens – ob zum Volkstheater, zur Kärntner Straße oder zu einer der vielen charmanten Gassen rund um die Hofburg. Diese zentrale Lage macht das Objekt besonders attraktiv für Unternehmen, die sowohl repräsentative Präsenz als auch urbane Anbindung schätzen.Beschreibung der Immobilie
Eckdaten
| Gesamtmiete: | 5.966,50 € |
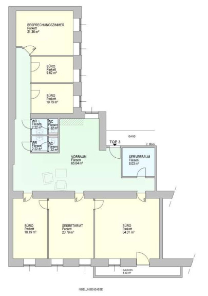
| Fläche: | 200,73 m² |
Basisdaten zur Immobilie
| Objektnr: | IVG-O-12562/1 |
| Art: | Büro / Praxis - Bürofläche |
| Land: | Österreich |
| Gesamtmiete: | 5.966,50 € |
| Kaltmiete (netto): | 4.114,97 € |
| Kaltmiete: | 4.937,96 € |
| Miete / m²: | 20,50 € |
| Provision: | 3 BMM zzgl. 20% USt |
| Betriebskosten: | 857,12 € |
| Nutzfläche: | 200,73 m² |
| Bürofläche: | 200,73 m² |
Ausstattung
Fernwärme, Personenaufzug
Internet und TV
Information zur Internet und TV Versorgung hier
Ihre persönliche Beratung
Magdalena Lemut, BSc (WU)
OTTO Immobilien GmbH
m.lemut@otto.at
00436764803674
00436764803674
F 004315137778
