Service- und Büroflächen direkt am Flughafen Wien
Halle / Lager / Produktion
,
1300
Flughafen Wien
Lage der Immobilie
Die gegenständliche Liegenschaft befindet sich im Bereich ‚Cargo Nord‘ in unmittelbarer Nähe zum Betriebsgelände des internationalen Flughafens Wien-Schwechat. Der Flughafen Wien Schwechat samt dem dazugehörigen Betriebsgelände ist im Südosten Wiens situiert und bietet sich vor allem als Standort für Betriebe spezialisierter Branchen – wie zum Beispiel der Luftfracht (Air Cargo) sowie Spedition und Logistik, Pharmaunternehmen, Groß- und Einzelhandel, Catering und Gastronomie sowie Dienstleistungsunternehmen - an. Der Flughafen Wien-Schwechat kann hierbei sowohl als Wirtschaftsmotor gesehen werden, als auch eine Drehscheibenfunktion hinsichtlich der zentral- und osteuropäischen Märkte einnehmen, was dem Standort einen zusätzlichen Stellenwert gibt. Die Anbindung an den Individualverkehr ist über das Flughafengebiet gegeben und als sehr gut zu bezeichnen. Durch den direkten Anschluss an die B9 Preßburger Bundesstraße sowie über die A4 Ostautobahn oder S1 Wiener Außenring-Schnellstraße ist der Standort schnell erreichbar. Nur wenige Gehminuten von der Liegenschaft entfernt befindet sich die Haltestelle der Vienna Airport Lines und City Airport Train, die den Standort mit dem 3. Wiener Gemeindebezirk und dem Hauptbahnhof verbinden.Beschreibung der Immobilie
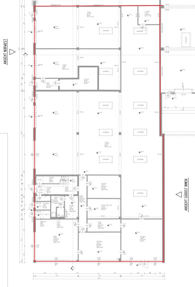
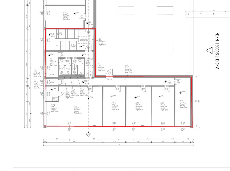
Eckdaten
| Fläche: | 1.153,00 m² |
Basisdaten zur Immobilie
| Objektnr: | IVG-I-11900/BT3-01 |
| Art: | Halle / Lager / Produktion |
| Land: | Österreich |
| Baujahr: | 2006 |
| Zustand: | Gepflegt |
| Provision: | 3 BMM zzgl. 20 % USt. |
| Nutzfläche: | 1.153,00 m² |
| Gesamtfläche: | 1.153,00 m² |
| Lagerfläche: | 659,00 m² |
| Bürofläche: | 494,00 m² |
| Heizwärmebedarf: | 40,40 kWh/m²a |
| fGEE: | 0,89 |
Internet und TV
Information zur Internet und TV Versorgung hier
Ihre persönliche Beratung
Dipl. Wirt. Ing. (FH) Wolfgang von Poellnitz
OTTO Immobilien GmbH
w.vonpoellnitz@otto.at
00436645116220
00436645116220
F 004315137778
