Immobilie merken

Service- und Büroflächen direkt am Flughafen Wien

Halle / Lager / Produktion , 1300 Flughafen Wien

Lage der Immobilie

Die gegenständliche Liegenschaft befindet sich im Bereich ‚Cargo Nord‘ in unmittelbarer Nähe zum Betriebsgelände des internationalen Flughafens Wien-Schwechat. Der Flughafen Wien Schwechat samt dem dazugehörigen Betriebsgelände ist im Südosten Wiens situiert und bietet sich vor allem als Standort für Betriebe spezialisierter Branchen – wie zum Beispiel der Luftfracht (Air Cargo) sowie Spedition und Logistik, Pharmaunternehmen, Groß- und Einzelhandel, Catering und Gastronomie sowie Dienstleistungsunternehmen - an. Der Flughafen Wien-Schwechat kann hierbei sowohl als Wirtschaftsmotor gesehen werden, als auch eine Drehscheibenfunktion hinsichtlich der zentral- und osteuropäischen Märkte einnehmen, was dem Standort einen zusätzlichen Stellenwert gibt. Die Anbindung an den Individualverkehr ist über das Flughafengebiet gegeben und als sehr gut zu bezeichnen. Durch den direkten Anschluss an die B9 Preßburger Bundesstraße sowie über die A4 Ostautobahn oder S1 Wiener Außenring-Schnellstraße ist der Standort schnell erreichbar. Nur wenige Gehminuten von der Liegenschaft entfernt befindet sich die Haltestelle der Vienna Airport Lines und City Airport Train, die den Standort mit dem 3. Wiener Gemeindebezirk und und den Hauptbahnhof verbinden.

Beschreibung der Immobilie

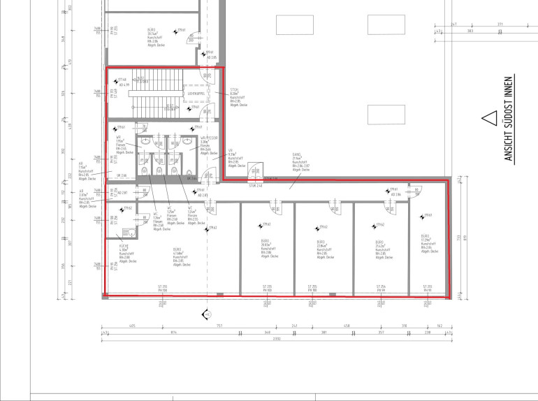
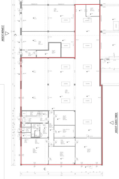
Das Gesamtobjekt hat eine Gesamtnutzfläche von rund 7.900 m² Lager- sowie rund 1.500 m² Büronutzfläche. Das Gebäude entspricht nationalen und internationalen Industriestandards und wurde 2007 / 2008 errichtet. Aktuell stehen mehrere Einheiten der Liegenschaft für eine langfristige Vermietung zur Verfügung. Die in weiterer Folge dargestellte Einheit des Bauteil 3 'UNIT WEST' ist eine eigenständige Liegenschaft mit dem Fokus einer Service- und Büronutzung und hat eine eigene Zufahrt vom Cargo-Nord-Ring. Die Gesamtfläche umfasst 2.280 m² und ist unterteilt in 1.620 m² ebenerdige Service- und Lagerflächen (zugänglich über 6 große Sektionaltore) sowie insgesamt 660 m² Büroflächen auf 2 Etagen. Die Unterteilung der Flächen ist je nach Nutzungskonzept möglich.

Eckdaten

Objektnr: IVG-I-11900/BT3-02
Art: Halle / Lager / Produktion
Land: Österreich
Baujahr: 2006
Zustand: Gepflegt
Provision: 3 BMM zzgl. 20 % USt.
Nutzfläche: 940,00 m²
Gesamtfläche: 940,00 m²
Lagerfläche: 473,00 m²
Bürofläche: 467,00 m²
Heizwärmebedarf: 40,40 kWh/m²a
fGEE: 0,89

Internet und TV

Information zur Internet und TV Versorgung hier




Immobilie anfragen




Ihre persönliche Beratung

OTTO Immobilien GmbH

Dipl. Wirt. Ing. (FH) Wolfgang von Poellnitz

OTTO Immobilien GmbH

w.vonpoellnitz@otto.at

00436645116220

00436645116220

F 004315137778


 - Immobilen Makler

OTTO Immobilien GmbH, Standort Hauptbahnhof, QBC3, Gertrude-Fröhlich-Sandner-Str 3, 1100 Wien, AUSTRIA

https://www.otto.at