ARES TOWER Moderne Büros mit Weitblick!
Büro / Praxis
- Bürofläche,
1220
Wien
Lage der Immobilie
Beste Standortqualität! - Das moderne Stadtzentrum zeichnet sich durch einen idealen Standort mit bester Infrastruktur aus. Es ist sowohl mit öffentlichen als auch mit privaten Verkehrsmitteln leicht erreichbar. Direkt um die Vienna DC befindet sich außerdem Wiens beliebtestes Freizeit- und Erholungsgebiet, die Donauinsel und der Donaupark. Öffentliche Verkehrsanbindung: - U-Bahn: U1 Station Kaisermühlen VIC - Bus: 20A, 92A, 92B Individualverkehr: - A22Beschreibung der Immobilie
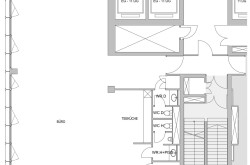
Eckdaten
| Gesamtmiete: | 5.911,98 € |
| Fläche: | 247,00 m² |
Basisdaten zur Immobilie
| Objektnr: | IVG-O-09548/7.22 |
| Art: | Büro / Praxis - Bürofläche |
| Land: | Österreich |
| Baujahr: | 2001 |
| Zustand: | Gepflegt |
| Gesamtmiete: | 5.911,98 € |
| Kaltmiete (netto): | 3.581,50 € |
| Kaltmiete: | 4.297,80 € |
| Miete / m²: | 14,50 € |
| Provision: | 3 BMM zzgl. 20 % USt. |
| Betriebskosten: | 1.345,15 € |
| Nutzfläche: | 247,00 m² |
| Bürofläche: | 247,00 m² |
| Stellplätze: | 75 |
| Heizwärmebedarf: | C 61,00 kWh/m²a |
Ausstattung
Zentralheizung, Personenaufzug
Internet und TV
Information zur Internet und TV Versorgung hier
Ihre persönliche Beratung
Magdalena Lemut, BSc (WU)
OTTO Immobilien GmbH
m.lemut@otto.at
00436764803674
00436764803674
F 004315137778
