Bürofläche nahe St. Marx
Büro / Praxis
- Bürofläche,
1030
Wien
Lage der Immobilie
Nur wenige Gehminuten entfernt befindet sich die U3 Station Erdberg sowie die Park & Ride - Anlage, in der Sie ihr Auto parken können. Öffentliche Anbindung: U-Bahn: U3 Station Erdberg Bus: 72A, 80ABeschreibung der Immobilie
Eckdaten
| Gesamtmiete: | 5.690,13 € |
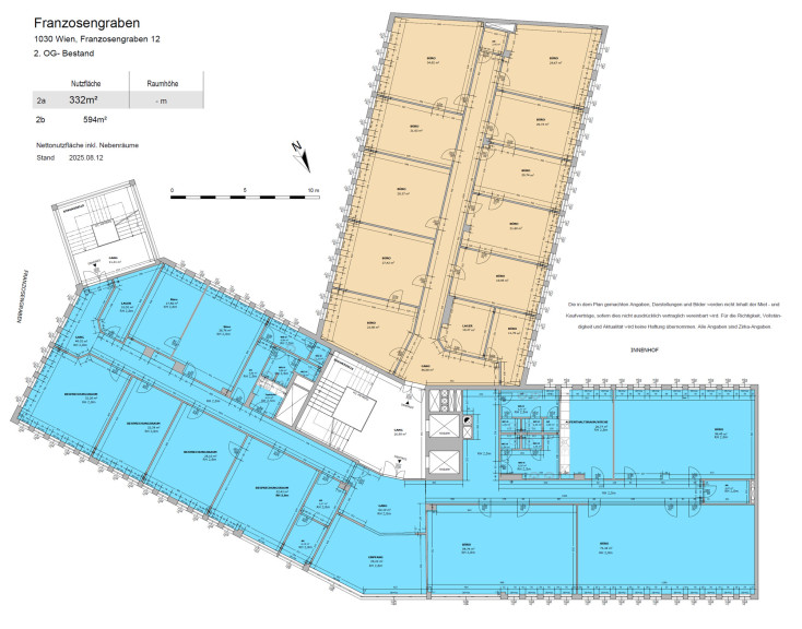
| Fläche: | 318,24 m² |
Basisdaten zur Immobilie
| Objektnr: | IVG-O-10693/2a |
| Art: | Büro / Praxis - Bürofläche |
| Land: | Österreich |
| Zustand: | Gepflegt |
| Gesamtmiete: | 5.690,13 € |
| Kaltmiete (netto): | 3.659,76 € |
| Kaltmiete: | 4.391,71 € |
| Miete / m²: | 11,50 € |
| Provision: | 3 BMM zzgl. 20% USt. |
| Betriebskosten: | 1.082,02 € |
| Nutzfläche: | 318,24 m² |
| Bürofläche: | 318,24 m² |
| Heizwärmebedarf: | D 113,76 kWh/m²a |
Ausstattung
Fernwärme, Personenaufzug
Internet und TV
Information zur Internet und TV Versorgung hier
Ihre persönliche Beratung
Helmut Wanjek
OTTO Immobilien GmbH
h.wanjek@otto.at
00436648549193
00436648549193
F 004315137778
