Geschäftslokal in zentraler Innenstadtlage
Einzelhandel
- Ladenlokal,
1010
Wien
Lage der Immobilie
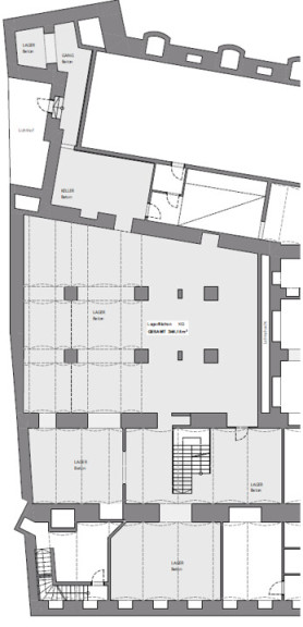
Das Geschäftslokal befindet sich in zentraler Lage im 1. Wiener Gemeindebezirk. Es liegt in unmittelbarer Nähe zum Schwedenplatz und ist damit hervorragend an das öffentliche Verkehrsnetz (U-Bahn, Straßenbahn, Bus) angebunden. Die Umgebung ist durch eine Mischung aus Bürostandorten, Gastronomie sowie Einzelhandel geprägt und bietet eine gute Frequenz sowie ein attraktives Umfeld für diverse Nutzungsmöglichkeiten. Öffentliche Verkehrsanbindung: - U-Bahn: U1/U4 - Station Schwedenplatz, U2/U4 - Station Schottenring - Straßenbahn: 1, 2, 31, 71, D - Bus: 2A, 3ABeschreibung der Immobilie
Eckdaten
| Gesamtmiete: | 6.350,52 € |
| Fläche: | 386,92 m² |
Basisdaten zur Immobilie
| Objektnr: | IVG-R-12864 |
| Art: | Einzelhandel - Ladenlokal |
| Land: | Österreich |
| Gesamtmiete: | 6.350,52 € |
| Kaltmiete (netto): | 4.600,00 € |
| Kaltmiete: | 5.520,00 € |
| Miete / m²: | 11,89 € |
| Provision: | 3 BMM zzgl. 20% USt. |
| Betriebskosten: | 692,10 € |
| Nutzfläche: | 386,92 m² |
Internet und TV
Information zur Internet und TV Versorgung hier
Ihre persönliche Beratung
Natalia Woskowicz, MSc
OTTO Immobilien GmbH
n.woskowicz@otto.at
00436763576845
00436763576845
F 004315137778
