MC 15 - Ein Bürogebäude, das Effizienz, Innovation und Umweltbewusstsein vereint.
Büro / Praxis
- Bürofläche,
1110
Wien
Lage der Immobilie
Öffentliche Verkehrsanbindung: - U-Bahn: U3 - Bus: 72a, 76a Individualverkehr: - Autobahn: A23, A4Beschreibung der Immobilie
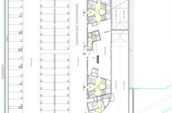
Eckdaten
| Gesamtmiete: | 6.663,11 € |
| Fläche: | 300,14 m² |
Basisdaten zur Immobilie
| Objektnr: | IVG-O-11160/1-201 |
| Art: | Büro / Praxis - Bürofläche |
| Land: | Österreich |
| Baujahr: | 2024 |
| Zustand: | Erstbezug |
| Gesamtmiete: | 6.663,11 € |
| Kaltmiete (netto): | 5.552,59 € |
| Kaltmiete: | 6.663,11 € |
| Miete / m²: | 18,50 € |
| Provision: | 3 BMM zzgl. 20 % USt. |
| Nutzfläche: | 300,14 m² |
| Bürofläche: | 300,14 m² |
Ausstattung
Zentralheizung, Personenaufzug
Internet und TV
Information zur Internet und TV Versorgung hier
Ihre persönliche Beratung
Philipp Granabetter, BSc (WU) MA
OTTO Immobilien GmbH
p.granabetter@otto.at
00436648516441
00436648516441
F 004315137778
