Terrassenbüro direkt am Naschmarkt
Büro / Praxis
- Bürofläche,
1060
Wien
Lage der Immobilie
Das Gebäude befindet sich in prominenter Lage neben dem Theater an der Wien und somit direkt am Naschmarkt. Diese Gegend hat sich in den vergangenen Jahren unter anderem aufgrund der Szenegastronomie zu einem der beliebtesten (Büro-) Standorte - vor allem in den Kreativbranchen etabliert. Neben dem Naschmarkt ist auch die Nähe zur Innenstadt, zum Verkehrsknoten Karlsplatz und zur Mariahilfer Straße hervorzuheben. Auf Grund der zentralen Lage kann die Infrastruktur als ausgezeichnet bewertet werden. VERKEHRSANBINDUNG Öffentlich: U-Bahn: U2, U1, U4 Station Karlsplatz Straßenbahn: D, 1, 2, 71 Station Oper Individualverkehr: 2 Minuten ins Stadtzentrum mit dem Auto 2 Minuten Fußweg zur Mariahilfer StraßeBeschreibung der Immobilie
Eckdaten
| Gesamtmiete: | 4.972,03 € |
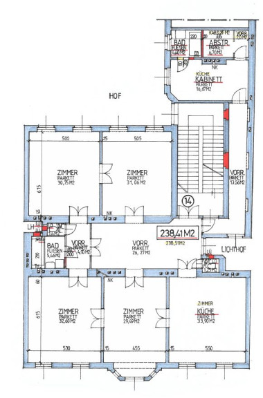
| Fläche: | 238,41 m² |
Basisdaten zur Immobilie
| Objektnr: | IVG-O-07614/14 |
| Art: | Büro / Praxis - Bürofläche |
| Land: | Österreich |
| Zustand: | Gepflegt |
| Gesamtmiete: | 4.972,03 € |
| Kaltmiete (netto): | 3.695,36 € |
| Kaltmiete: | 4.434,43 € |
| Miete / m²: | 15,50 € |
| Betriebskosten: | 448,00 € |
| Nutzfläche: | 238,41 m² |
| Bürofläche: | 238,41 m² |
Internet und TV
Information zur Internet und TV Versorgung hier
Ihre persönliche Beratung
Magdalena Lemut, BSc (WU)
OTTO Immobilien GmbH
m.lemut@otto.at
00436764803674
00436764803674
F 004315137778
