Beschreibung der Immobilie
Das Wohnhaus wird massiv errichtet und verfügt über einen eigenen Garten von rund 133m² in einer ruhigen Sackgasse.
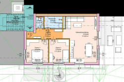
Die Wohnung hat 2 Schlafzimmer und ein offenes Wohn.- Esszimmer mit angrenzender Terrasse von ca. 31m²
Bad und WC sind separat. Das Kellerabteil hat die Größe von 7,65m²
Ebenfalls im Preis enthalten sind 1 Überdachter Parkplatz und ein freier Autoabstellplatz.
Ein Liftschacht wird vorbereitet.
Die Wohnung hat 2 Schlafzimmer und ein offenes Wohn.- Esszimmer mit angrenzender Terrasse von ca. 31m²
Bad und WC sind separat. Das Kellerabteil hat die Größe von 7,65m²
Ebenfalls im Preis enthalten sind 1 Überdachter Parkplatz und ein freier Autoabstellplatz.
Ein Liftschacht wird vorbereitet.
Eckdaten
| Objektnr: | O2100167415 |
| Art: | Wohnung |
| Land: | Österreich |
| Baujahr: | 2026 |
| Zustand: | Erstbezug |
| Alter: | Neubau |
| Kaufpreis: | 431.000,00 € |
| Provision: | 3,6 inkl. 20% MwSt. vom Gesamtkaufpreis |
| Wohnfläche: | 74,92 m² |
| Gesamtfläche: | 74,92 m² |
| Zimmer: | 3 |
| Bäder: | 1 |
| Stellplätze: | 2 |
| Garten: | 133,50 m² |
| Keller: | 7,65 m² |
Ausstattung
Wohnküche / offene Küche, Dusche, Kabel/Satelliten-TV
Internet und TV
Information zur Internet und TV Versorgung hier
Ihre persönliche Beratung
Dipl. FW Hilde Papst
Papst Immobilien GmbH
E office@papst-immo.at
H 0660/4683084
