Stilvolle, vielseitig nutzbare Geschäftsfläche - repräsentativer Altbau - ab Frühjahr 2026!
Büro / Praxis
,
1130
Wien
Lage der Immobilie
Lainzer Straße 25Beschreibung der Immobilie
Geschätzte InteressentInnen!
Zur vereinfachten Abstimmung bitten wir um Übermittlung konkreter Terminvorschläge Ihrerseits über das Kontaktformular oder um telefonische Kontaktaufnahme!
ERZÄHLEN SIE UNS VON IHREM KONZEPT!
Herzlichen Dank!
Räumlichkeiten.
Die Geschäftsfläche befindet sich in der Lainzer Straße 25 in einem gepflegten, repräsentativem Altbau. Die Einheit selbst befindet sich im 2. Liftstock und steht ab Frühjahr zur befristeten Anmietung (8-10 Jahre) zur Verfügung.
Hier erwarten Sie mehrere helle Büro- und Besprechungsräume, drei voll ausgestattete Küchen, Sanitäranlagen, sowie ein Vorraum mit Zugang zur praktischen Waschküche. Das Angebot ergänzt ein hofseitiger Balkon mit einer Größe von rd. 7m². Die gegenständliche Einheit ist aufgrund des zentralen Vorraums auch gut in drei voneinander getrennte Einheiten teilbar und eignet sich daher auch als Gemeinschaftsbüro.
Insgesamt präsentiert sich die Einheit als vielseitig nutzbares Büro- und Gewerbeobjekt mit repräsentativem Zugang, durchdachter Erschließung und attraktiver Ausstattung – ideal für moderne Unternehmen mit Anspruch an eine gepflegte Arbeitsumgebung.
Gut zu wissen: Bauliche Änderungswünsche sind nach Absprache mit dem Vermieter möglich, z.B. das Entfernen von Küchen.
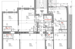
Flächenverteilung:
Gesamt weist die Einheit laut Planunterlagen eine Fläche von 244,60m² auf. Diese verteilt sich wie folgt:
- 7 Büroräumlichkeiten (drei davon mit einer Küche ausgestattet)
- straßenseitig: vier Räume mit einer Größe von rd. 49m² / 27m² / 26m² / 10m²
- hofseitig: drei Räume mit einer Größe von rd. 37m² / 24m² und 22m² mit Zugang zum Balkon
- 1 Abstellraum / Waschküche mit rd. 5m² Größe
- 2 moderne Badezimmer mit Dusche und WC (jeweils rd. 4-5m²)
- 2 weitere Duschbäder (jeweils rd. 4-5m²)
- 3 separate Toiletten mit Handwaschbecken
- Vorraum / Gangfläche rd. 23m²
Die Allgemeinflächen befinden sich insgesamt in einem gepflegten Zustand.
Geheizt wird mittels Gasetagenheizung - die Kosten für Gas, Strom und Wasser sind in der Miete nicht inkludiert und sind verbrauchsabhängig und separat an den Lieferanten zu bezahlen.
Lage / Infrastruktur.
Der 13. Wiener Gemeindebezirk Hietzing zählt zu den beliebtesten und exklusivsten Wohn- und Geschäftsadressen Wiens. Der Bezirksteil Alt-Hietzing rund um die Lainzer Straße ist geprägt von klassischer Gründerzeitarchitektur, eleganten Villenvierteln und einer außergewöhnlich hohen Lebensqualität.
Die Liegenschaft in der Lainzer Straße 25 profitiert von einer sehr guten Lage am westlichen Stadtrand, die Ruhe, Repräsentativität und eine solide städtische Anbindung vereint. Die Umgebung bietet eine Mischung aus Wohngebäuden, Nahversorgern, Gastronomiebetrieben sowie einer Vielzahl an Boutiquen, Geschäften und Dienstleistungsunternehmen. Die Lainzer Straße fungiert als wichtige Geschäfts- und Verkehrsachse des Bezirks.
Die Wiener Innenstadt ist mittels U4 (U-Bahn-Station Hietzing) rasch erreichbar. Auch der Anschluss an das überregionale Verkehrsnetz ist günstig: Über die westlichen Einfahrtsrouten und den Hietzinger Kai gelangt man zügig in die City oder weiter Richtung A1 und A2.
Die Nahversorgung ist ausgezeichnet: Supermärkte, Bäckereien, Cafés, eine Apotheke, Banken und diverse Dienstleistungsbetriebe und Geschäfte befinden sich in unmittelbarer Umgebung. Schulen, Kindergärten sowie medizinische Einrichtungen sind ebenfalls leicht erreichbar und unterstreichen den hohen infrastrukturellen Standard des Standortes.
Zur Erholung stehen mehrere der schönsten Grünräume der Stadt in Gehweite bereit – allen voran der Schlosspark Schönbrunn mit seinen weitläufigen Wegen, historischen Gartenanlagen und Freizeitmöglichkeiten oder die Grünanlage "Roter Berg".
Öffentliche Verkehrsanbindung im Detail:
- Haltestelle "Jagdschlossgasse" (rd. 155m Entfernung, 2 Gehminuten):
- Straßenbahnlinie 60 in Fahrtrichtung Rodaun / Westbahnhof S+U (U4 Station "Hietzing" binnen 7 Fahrtminuten erreichbar)
- Nachtbuslinie N60
- Haltestelle "Speising" (rd. 680m Entfernung, 9 Gehminuten):
- Schnellbahn S80 in Fahrtrichtung Aspern Nord / Wien Hütteldorf
- Haltestelle "Schrutkagasse" (rd. 680m Entfernung, 9 Gehminuten)
- 53A in Fahrtrichtung Bahnhof Hütteldorf S+U
- Haltestelle "Unter St. Veit"(rd. 1,6km Entfernung, 20 Gehminuten)
- U-Bahn U4
- Buslinien 47A, N54
Insgesamt handelt es sich hierbei um eine repräsentative, ruhige und dennoch hervorragend angebundene Geschäftsadresse in einer der begehrtesten Lagen des 13. Bezirks – ideal für Unternehmen, die Wert auf ein hochwertiges Umfeld mit sehr guter Erreichbarkeit legen.
Sollten Sie nach Durchsicht des Inserats eine Besichtigung wünschen, bitten wir um Anfrage über das Kontaktformular und Nennung ein paar konkreter Terminvorschläge.
Noch nichts gefunden?
Wir informieren Sie als Erste/r über passende Immobilienangebote.
Legen Sie jetzt Ihren individuellen Suchagenten über folgenden Link an.
Wir senden Ihnen geeignete Immobilien unverbindlich vorab zu.
Suchagent anlegen - https://sulek-immobilien.service.immo/registrieren/de
Der Vermittler ist als Doppelmakler tätig.
Infrastruktur / Entfernungen
Gesundheit
Arzt <500m
Apotheke <500m
Klinik <500m
Krankenhaus <2.000m
Kinder & Schulen
Schule <500m
Kindergarten <1.000m
Universität <1.500m
Höhere Schule <3.500m
Nahversorgung
Supermarkt <500m
Bäckerei <500m
Einkaufszentrum <2.500m
Sonstige
Geldautomat <500m
Bank <500m
Post <1.000m
Polizei <500m
Verkehr
Bus <500m
U-Bahn <500m
Straßenbahn <500m
Bahnhof <500m
Autobahnanschluss <4.000m
Angaben Entfernung Luftlinie / Quelle: OpenStreetMap
Eckdaten
| Kaltmiete (netto): | 4.280,50 € |
| Fläche: | 244,60 m² |
| Zimmer: | 7 |
Basisdaten zur Immobilie
| Objektnr: | 26120 |
| Art: | Büro / Praxis |
| Land: | Österreich |
| Zustand: | Gepflegt |
| Alter: | Altbau |
| Kaltmiete (netto): | 4.280,50 € |
| Kaltmiete: | 4.794,16 € |
| Miete / m²: | 17,50 € |
| Provision: | 3 Bruttomonatsmieten zzgl. 20% USt. |
| Betriebskosten: | 513,66 € |
| MwSt Gesamt: | 958,83 € |
| Nutzfläche: | 244,60 m² |
| Zimmer: | 7 |
| Bäder: | 4 |
| WC: | 5 |
| Heizwärmebedarf: | B 32,80 kWh/m²a |
| fGEE: | A 0,74 |
Ausstattung
Parkett, Fliesen, Gas, Etagenheizung, Einbauküche, Wohnküche / offene Küche, Personenaufzug, Dusche, Wasch/Trockenraum
Internet und TV
Information zur Internet und TV Versorgung hier
Ihre persönliche Beratung
M.A., MBA Philipp Sulek
Mittelsmann Philipp Sulek GmbH
ps@kaufmannsulek.at
+43 1 226 27 20
+43 660 199 19 88
