Neubauprojekt mit 3 Wohneinheiten Graz Nähe
Wohnung
,
8044
Weinitzen
Beschreibung der Immobilie
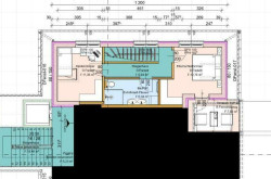
Das Erdgeschoß besteht aus Vorraum, Abstellraum, Speis, WC ein offenes Wohn.- Esszimmer und angrenzender Sonnenterrasse von ca. 25m²
Die Wohnung hat im Obergeschoß 2 Schlafzimmer und Bad mit WC und ein kleiner Balkon beim Elternschlafzimmer.
Das Kellerabteil hat die Größe von 7,65m²
Ebenfalls im Preis enthalten sind 1 Überdachter Parkplatz und ein freier Autoabstellplatz.
Ein Liftschacht wird vorbereitet.
Eckdaten
| Kaufpreis: | 562.000,00 € |
| Fläche: | 97,72 m² |
| Zimmer: | 3 |
Basisdaten zur Immobilie
| Objektnr: | O2100167417 |
| Art: | Wohnung |
| Land: | Österreich |
| Baujahr: | 2026 |
| Zustand: | Erstbezug |
| Alter: | Neubau |
| Kaufpreis: | 562.000,00 € |
| Provision: | 3,6 inkl. 20% MwSt. vom Gesamtkaufpreis |
| Wohnfläche: | 97,72 m² |
| Gesamtfläche: | 97,72 m² |
| Zimmer: | 3 |
| Bäder: | 1 |
| WC: | 1 |
| Stellplätze: | 2 |
| Garten: | 133,00 m² |
| Keller: | 7,65 m² |
Ausstattung
Wohnküche / offene Küche, Dusche, Kabel/Satelliten-TV
Internet und TV
Information zur Internet und TV Versorgung hier
Ihre persönliche Beratung
Dipl. FW Hilde Papst
Papst Immobilien GmbH
office@papst-immo.at
0660/4683084
