360° TOUR // HIETZINGER ALTBAU-VILLA
Büro / Praxis
,
1130
Wien
Beschreibung der Immobilie
HIETZINGER ALTBAU-VILLA
Die Stilvilla (ca. BJ 1915) in zentraler Lage von Hietzing, mit ca. 170m² Wohnfläche und 240m² Gartenfläche gliedert sich wie folgt:
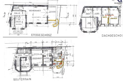
Raumaufteilung:
Erdgeschoß:
Entree und große Halle (ca. 29m²), Wohnzimmer (ca. 42m²) mit Ausgang auf die Terrasse und in den Garten;
Untergeschoß:
Gang, Eßzimmer (ca. 24m²), Vorraum & Küche (zusammen ca. 18m²), Speis, WC, Wirtschafts-/ Abstellraum,
ein weiteres großes Schlafzimmer (ca. 15m²) mit Ausgang auf eine Terrasse in den Garten, Badezimmer, WC;
Dachgeschoß:
Vorraum, Schlafzimmer (ca. 19m²), Badezimmer (ca. 6,50m²), begehbare Garderobe (ca. 10m²).
Ausstattung:
• Teppichboden
• gesamte Hauselektrik modernisiert
• Gas-Zentralheizung
Geschäfte des täglichen Bedarfs und die U-Bahnlinie (U4) sind fußläufig erreichbar.
Ein Energieausweis wurde vom Eigentümer angefordert und wird nachgereicht.
360° Tour:
https://360.kalandra.at/view/portal/id/VZZ7F
Infrastruktur / Entfernungen
Gesundheit
Arzt <500m
Apotheke <1.000m
Klinik <1.000m
Krankenhaus <2.000m
Kinder & Schulen
Schule <1.000m
Kindergarten <1.000m
Universität <2.000m
Höhere Schule <3.000m
Nahversorgung
Supermarkt <1.000m
Bäckerei <500m
Einkaufszentrum <2.500m
Sonstige
Geldautomat <1.000m
Bank <1.000m
Post <1.000m
Polizei <1.000m
Verkehr
Bus <500m
U-Bahn <1.000m
Straßenbahn <1.000m
Bahnhof <1.000m
Autobahnanschluss <3.000m
Angaben Entfernung Luftlinie / Quelle: OpenStreetMap
Eckdaten
| Kaltmiete (netto): | 4.000,00 € |
| Fläche: | 170,00 m² |
| Zimmer: | 5 |
Basisdaten zur Immobilie
| Objektnr: | 18564 |
| Art: | Büro / Praxis |
| Land: | Österreich |
| Baujahr: | 1915 |
| Zustand: | Neuwertig |
| Kaltmiete (netto): | 4.000,00 € |
| Kaltmiete: | 4.500,00 € |
| Betriebskosten: | 500,00 € |
| MwSt Gesamt: | 450,00 € |
| Wohnfläche: | 170,00 m² |
| Grundstücksfl.: | 337,00 m² |
| Zimmer: | 5 |
| Bäder: | 2 |
| WC: | 3 |
| Terrassen: | 2 |
Ausstattung
Gas, Etagenheizung
Internet und TV
Information zur Internet und TV Versorgung hier
Ihre persönliche Beratung
Mag. Robin Kalandra
robin@kalandra.at
+43-1533326913
+43-69911804004
F +43-1-533-32-69-20

