ODO25 – Urbanes Wohnen mit durchdachten Grundrissen & perfekter Lage in Ottakring
Wohnung
,
1160
Wien
,
Odoakergasse 25
Beschreibung der Immobilie
Mit dem ODO25 entsteht in der Odoakergasse 25 im 16. Wiener Gemeindebezirk, am Fuße des Wilhelminenbergs, ein modernes Wohnprojekt, das urbanes Lebensgefühl, zeitgemäße Architektur und nachhaltigen Wohnkomfort vereint. Die Wohnhausanlage richtet sich an Menschen in unterschiedlichen Lebensphasen – von Singles über Paare bis hin zu Familien – und bietet Raum zum Ankommen, Entfalten und Wohlfühlen.
Das Projekt umfasst 61 hochwertige Mietwohnungen sowie eine Atelier- bzw. Büroeinheit im Hofhaus. Die überwiegend 1,5-, 2- sowie 3-Zimmer-Wohnungen mit Wohnflächen von ca. 30 bis 80 m² überzeugen durch durchdachte, kompakte Grundrisse, helle Räume und eine hochwertige Ausstattung. Großzügige bodentiefe Fenster, klare architektonische Linien und teilweise private Freiflächen wie Balkone, Loggien oder Terrassen schaffen ein angenehmes, urbanes Wohnambiente. Ergänzt wird das Angebot durch ausgewählte Dach-Maisonetten, die ein besonders exklusives Wohngefühl bieten.
ODO25 setzt auf ein zukunftsorientiertes, nachhaltiges Gesamtkonzept und strebt eine ÖGNI-/DGNB-Gold-Zertifizierung an.
Das Projekt im Überblick
- 61 Mietwohnungen sowie 1 Büro- & Atelierfläche
- 1,5- bis 3-Zimmer-Wohnungen mit ca. 30–80 m² Wohnfläche
- Teilweise private Freiflächen (Balkon, Loggia oder Terrasse)
- Fahrradabstellraum & Kinderspielraum
- Energieeffiziente Bauweise mit Wärmepumpe, Erdwärmesonden und Bauteilaktivierung
- Begrünter Innenhof sowie Fassaden- und Dachbegrünung
Ausstattung im Überblick
- Heizung und Kühlung über die Decke mittels Erdwärme
- Voll ausgestattete Küchen
- Vinylboden in Eichenoptik in den Wohnräumen
- Fliesen bzw. Feinsteinzeug in den Sanitärräumen
- Kunststoff-Alu-Fenster
- Außenliegender Sonnenschutz im Dachgeschoß
- Sicherheitstüren WK2/RC2
- Glasfaseranschluss
Lage – Urbanes Leben mit Nähe zur Natur
ODO25 liegt im Herzen von Ottakring und verbindet urbane Infrastruktur mit naturnaher Erholung. Zahlreiche Grün- und Erholungsgebiete wie der Wilhelminenberg, die Steinhofgründe oder der Kongresspark befinden sich in kurzer Distanz und bieten vielfältige Freizeitmöglichkeiten. Gleichzeitig ist die Anbindung an die Wiener Innenstadt hervorragend: Die U3-Station „Ottakring“ ist fußläufig erreichbar und bringt Sie in kurzer Zeit ins Stadtzentrum.
Zahlreiche Einkaufsmöglichkeiten für den täglichen Bedarf, Restaurants sowie traditionelle Heurige befinden sich in unmittelbarer Umgebung. Kindergärten sowie sämtliche Schultypen sind ebenfalls rasch erreichbar.
Verkehrsanbindung
- Straßenbahn: 2, 10, 33, 44 & 46
- Bus: 45A, 46A, 46B & N46
- S-Bahn: S45
- U-Bahn: U3 Ottakring (ca. 10 Gehminuten)
Voraussichtliche Fertigstellung: 01.07.2026
Befristung: 5 Jahre, 1 Jahr Kündigungsverzicht, 3 Monate Kündigungsfrist
Nebenkosten: 3 BMM Kaution
Den Wohnungen sind keine Kellerabteile zugeordnet.
Das Projekt befindet sich derzeit noch im Bau. Wir freuen uns über Ihre Kontaktaufnahme per E-Mail, um einen Besichtigungstermin der Musterwohnung zu vereinbaren!
Wir weisen darauf hin, dass zwischen dem Vermittler und dem zu vermittelnden Dritten ein familiäres oder wirtschaftliches Naheverhältnis besteht.
Der Immobilienmakler erklärt, dass er – entgegen dem in der Immobilienwirtschaft üblichen Geschäftsgebrauch des Doppelmaklers – einseitig nur für den Vermieter tätig ist.
Infrastruktur / Entfernungen
Gesundheit
Arzt <200m
Apotheke <125m
Klinik <775m
Krankenhaus <275m
Kinder & Schulen
Schule <200m
Kindergarten <225m
Universität <1.600m
Höhere Schule <1.275m
Nahversorgung
Supermarkt <150m
Bäckerei <325m
Einkaufszentrum <325m
Sonstige
Geldautomat <150m
Bank <350m
Post <350m
Polizei <400m
Verkehr
Bus <100m
U-Bahn <550m
Straßenbahn <100m
Bahnhof <650m
Autobahnanschluss <4.725m
Angaben Entfernung Luftlinie / Quelle: OpenStreetMap
Eckdaten
| Objektnr: | 92568 |
| Art: | Wohnung |
| Land: | Österreich |
| Baujahr: | 2026 |
| Zustand: | Erstbezug |
| Alter: | Neubau |
| Gesamtmiete: | 899,00 € |
| Kaltmiete (netto): | 722,09 € |
| Kaltmiete: | 817,27 € |
| Provision: | Gemäß Erstauftraggeberprinzip bezahlt der Abgeber die Provision. |
| Betriebskosten: | 95,18 € |
| MwSt Gesamt: | 81,73 € |
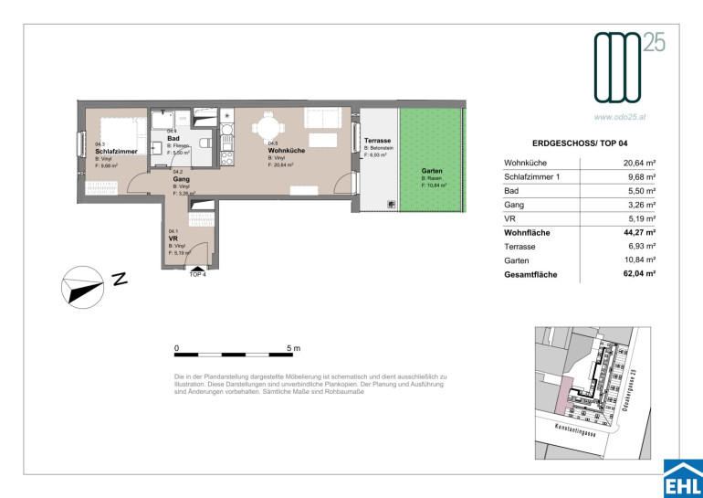
| Wohnfläche: | 44,27 m² |
| Zimmer: | 2 |
| Bäder: | 1 |
| WC: | 1 |
| Terrassen: | 1 |
| Garten: | 10,84 m² |
| Heizwärmebedarf: | B 26,20 kWh/m²a |
| fGEE: | A+ 0,66 |
Ausstattung
Fliesen, Kunststoffboden, Erdwärme, Wohnküche / offene Küche, Personenaufzug, Nordbalkon, Dusche, Tiefgarage
Internet und TV
Information zur Internet und TV Versorgung hier
Ihre persönliche Beratung
Helena Rohrauer
EHL Immobilien GmbH
h.rohrauer@ehl.at
+43 1 5127690-408
+43 (664) 88982237
