Beschreibung der Immobilie
Wien Fifteen – Investment mit Zukunftspotenzial.
Attraktive Vorsorgewohnungen mit perfekter Anbindung.
Mitten im dynamisch wachsenden 15. Bezirk Wiens entstehen in der Sechshauser Straße hochwertige Investmentwohnungen – ideal für Anlegerinnen und Anleger, die auf urbanes Wohnen mit bester Infrastruktur setzen. Nur drei Gehminuten zur U6 sowie mehrere Straßenbahn- und Buslinien machen Wien Fifteen zu einem Mobilitäts-Hotspot. Auch Radfahrerinnen und Radfahrer profitieren von großzügigen Abstellflächen und direkter Anbindung an das Wiener Radwegenetz.
Zwei Welten, ein Investment: sanierter Altbau trifft modernen Neubau
Wien Fifteen vereint behutsam revitalisierte Altbauelemente mit einem zukunftsorientierten Neubau. Im historischen Bestand gilt ein gesetzlich beschränkter Mietzins – ideal für eine langfristige, stabile Veranlagung. Der moderne Neubau hingegen bietet ideale Voraussetzungen für marktkonforme Mieten und eine erstklassige Vermietungssituation – inklusive hochwertiger Ausstattung, ökologischer Bauweise und zeitgemäßem Wohnkomfort.
Das Projekt
- 65 Eigentums- und Vorsorgewohnungen
- ca. 30–115 m² Wohnfläche
- Mietzinsbeschränkung im Altbau – attraktive Renditechancen im Neubau
- Perfekte Anbindung: U6, Straßenbahn, Bus & Radwege
- Mobility-Point & großzügige Fahrradabstellräume
- 20 Tiefgaragenplätze (auf Wunsch mit E-Ladestation)
- Nahversorger direkt im Haus
Zukunftsorientiert & komfortabel vermieten:
- ÖGNI-Nachhaltigkeitszertifikat & EU-taxonomiekonforme Bauweise
- Fußbodenheizung mit Fernwärme
- Photovoltaikanlage am Dach
- Parkett, Feinsteinzeug & hochwertige Bäder
- Shared-Office-Flächen, Spielraum & Paketboxen im Haus
- Begrünter Innenhof mit Hochbeeten & Spielplatz
Wien Fifteen – investieren, wo urbane Lebensqualität auf durchdachtes Investment trifft!
Kaufpreise der Vorsorgewohnungen
von EUR 232.900,- bis EUR 1.495.000,- netto zzgl. 20% USt.
Zu erwartender Mietertrag
von ca. EUR 15,25 bis EUR 16,75 netto/m²
Provisionsfrei für den Käufer!
Fertigstellung voraussichtlich Q4/2027
Bei diesem Angebot handelt es sich um eine Vorsorgewohnung, die zu Vermietungszwecken erworben wird. Der angegebene Kaufpreis versteht sich daher zzgl. 20% USt. Diese Daten sind vorbehaltlich möglicher Änderungen.
Ein detaillierten Überblick finden Sie auf unsere EHL-Projekthomepage!
Wir weisen darauf hin, dass zwischen dem Vermittler und dem zu vermittelnden Dritten ein familiäres oder wirtschaftliches Naheverhältnis besteht.
Der Vermittler ist als Doppelmakler tätig.
Infrastruktur / Entfernungen
Gesundheit
Arzt <250m
Apotheke <250m
Klinik <250m
Krankenhaus <750m
Kinder & Schulen
Schule <250m
Kindergarten <250m
Universität <500m
Höhere Schule <1.250m
Nahversorgung
Supermarkt <250m
Bäckerei <500m
Einkaufszentrum <1.250m
Sonstige
Geldautomat <750m
Bank <750m
Post <250m
Polizei <500m
Verkehr
Bus <250m
U-Bahn <250m
Straßenbahn <250m
Bahnhof <250m
Autobahnanschluss <3.750m
Angaben Entfernung Luftlinie / Quelle: OpenStreetMap
Eckdaten
| Objektnr: | 84785 |
| Art: | Wohnung |
| Land: | Österreich |
| Baujahr: | 2025 |
| Zustand: | Erstbezug |
| Alter: | Neubau |
| Kaufpreis: | 419.900,00 € |
| Kaufpreis / m²: | auf Anfrage |
| Provision: | Provision bezahlt der Abgeber |
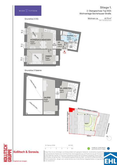
| Wohnfläche: | 61,73 m² |
| Zimmer: | 2 |
| Bäder: | 1 |
| WC: | 1 |
| Heizwärmebedarf: | B 43,80 kWh/m²a |
| fGEE: | B 1,00 |
Ausstattung
Parkett, Fliesen, Fußbodenheizung, Wohnküche / offene Küche, Personenaufzug, Dusche, Tiefgarage, Wasch/Trockenraum
Internet und TV
Information zur Internet und TV Versorgung hier
Ihre persönliche Beratung
Andrea PÖCHHACKER; MSc
EHL Immobilien GmbH
a.poechhacker@ehl.at
+4315127690 DW 411
+43664 83 73 481
