Attraktives Renditeobjekt mit Entwicklungspotenzial in Rottenmann
Zinshaus Renditeobjekt
,
8786
Rottenmann
Lage der Immobilie
Dank der Nähe zur A9 Pyhrn Autobahn und zur S6 Semmering Schnellstraße ist der Standort verkehrstechnisch hervorragend angebunden. Städte wie Graz, Linz und Wien sind schnell erreichbar, ebenso wichtige regionale Verkehrsachsen. Die Liegenschaft liegt zentral in Rottenmann in der Steiermark und verbindet städtische Infrastruktur mit einem naturnahen Umfeld. Die Lage entlang der Hauptstraße sorgt für hohe Sichtbarkeit und starke Passantenfrequenz. Öffentliche Verkehrsmittel sind bequem erreichbar, ebenso Geschäfte des täglichen Bedarfs, Gastronomie, Supermärkte, Schulen sowie medizinische Einrichtungen. Die vielseitige Umgebung macht das Objekt sowohl für gewerbliche als auch für private Nutzung besonders interessant.Beschreibung der Immobilie
Attraktives Renditeobjekt mit Entwicklungspotenzial
Zum Verkauf gelangt eine zentral gelegene Liegenschaft in 8786 Rottenmann, die sich als nachhaltige Investition mit vielseitigen Nutzungsmöglichkeiten präsentiert. Das Objekt eignet sich sowohl für gewerbliche Konzepte als auch für eine teilweise oder vollständige Umnutzung zu Wohnraum.
Die Immobilie ist derzeit teilweise vermietet. Das Erdgeschoss ist an einen verlässlichen Mieter vergeben und generiert bereits laufende Einnahmen. Für die Flächen im ersten und zweiten Obergeschoss sowie für drei Garagen liegen bereits weitere Interessensbekundungen vor, wodurch zusätzliches Ertragspotenzial gegeben ist.
Besondere Merkmale
-
18 PKW-Stellplätze
-
3 Garagen
-
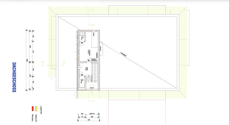
Lagerflächen: ca. 390 m² im Keller und ca. 32 m² im Dachgeschoss
-
Zentrale Lage mit hoher Sichtbarkeit und Verkehrsfrequenz
-
Sehr gute Anbindung an öffentliche Verkehrsmittel
-
Großzügige Nutzfläche mit vielfältigen Nutzungsmöglichkeiten
-
Bestehendes Mietverhältnis mit weiterem Vermietungspotenzial
-
Klimaanlage im 2. Obergeschoss
-
Separat regulierbare Raumtemperatur
-
Glasfaseranschluss
-
Fern- und Bergblick
-
Letzte Sanierung im Jahr 2020
Verkehrsanbindung
-
Buslinien 915, 930 und 931, ca. 2 Minuten entfernt
-
Bahnhof Rottenmann, ca. 5 Minuten
Kosten & Hinweise
Monatliche Kosten sind auf Anfrage verfügbar.
Alle Angaben beruhen auf Informationen des Abgebers. Änderungen und Irrtümer vorbehalten, eine Haftung für Vollständigkeit und Richtigkeit kann nicht übernommen werden.
"BITTE BEACHTEN SIE, DASS WIR AUFGRUND DER NACHWEISPFLICHT GEGENÜBER DEM EIGENTÜMER NUR ANFRAGEN MIT VOLLSTÄNDIGER ANGABE DER ANSCHRIFT UND ANGABEN ZUR PERSON (NAME, TELEFON, E-MAIL) BEARBEITEN KÖNNEN."
Infrastruktur / Entfernungen
Gesundheit
Arzt <500m
Apotheke <500m
Krankenhaus <500m
Kinder & Schulen
Schule <500m
Kindergarten <500m
Nahversorgung
Supermarkt <500m
Bäckerei <7.500m
Einkaufszentrum <9.500m
Sonstige
Geldautomat <500m
Bank <500m
Post <500m
Polizei <9.500m
Verkehr
Bus <500m
Autobahnanschluss <1.500m
Bahnhof <500m
Angaben Entfernung Luftlinie / Quelle: OpenStreetMap
Eckdaten
| Objektnr: | 55656 |
| Art: | Zinshaus Renditeobjekt |
| Land: | Österreich |
| Baujahr: | 1970 |
| Zustand: | Nach_vereinbarung |
| Alter: | Neubau |
| Kaufpreis: | 900.000,00 € |
| Kaufpreis / m²: | auf Anfrage |
| Nutzfläche: | 1.080,00 m² |
| Grundstücksfl.: | 1.690,00 m² |
| Lagerfläche: | 423,30 m² |
| Zimmer: | 25 |
| WC: | 4 |
| Stellplätze: | 18 |
| Keller: | 390,60 m² |
| Heizwärmebedarf: | E 109,20 kWh/m²a |
| fGEE: | D 1,77 |
Ausstattung
Zentralheizung, Personenaufzug, Garage, Parkplatz
Internet und TV
Information zur Internet und TV Versorgung hier
Ihre persönliche Beratung
Philipp Stummer
Real Immo Wien Immobilientreuhand - Inh. Gerald Frank
E stummer@realimmo.wien
T +4315120488
H +4366499651213
Real Immo Wien Immobilientreuhand - Inh. Gerald Frank
Rabensteig 1 / 13, 1010 Wien
Tel.: +43 1 512 04 88