Lichtdurchflutete Dachgeschoß-Maisonette mit zwei Terrassen in Toplage nahe Währinger Straße / WIFI
Wohnung
- Dachgeschoß,
1180
Wien
Beschreibung der Immobilie
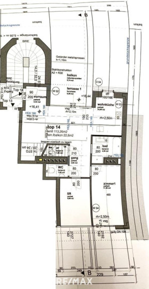
Zum Verkauf gelangt eine außergewöhnliche 4-Zimmer-Dachgeschoß-Maisonette auf einem stilvollen Altbau in bester Lage des 18. Bezirks – nur wenige Schritte von der U6 Währinger Straße/Volksoper entfernt.
Schon beim Betreten empfängt Sie ein heller, ruhiger Vorraum, der direkt in die ca. 30 m² große, hofseitige Wohnküche führt. Durch großzügige Glasflächen strömt reichlich Tageslicht in den Raum und schafft eine einladende Atmosphäre. Von hier aus gelangen Sie auf die erste ca. 11 m² große Terrasse, die hof- und südseitig ausgerichtet ist – ideal für sonnige Stunden und entspannte Momente im Freien.
Diese Ebene bietet darüber hinaus zwei Schlafzimmer (ca. 9 m² und 12 m²), ein modern ausgestattetes Badezimmer sowie ein separates WC.
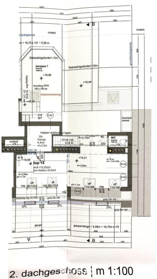
Ein besonderes Highlight erwartet Sie in der oberen Etage:
Das rund 42 m² große Wohnzimmer beeindruckt durch seine atemberaubende Glasfront, die sich über die gesamte Länge und Höhe des Raumes erstreckt – vom Fußboden bis zur Decke. Diese nahezu durchgängige Fensterfläche verleiht dem Raum ein einzigartiges Raumgefühl mit Loft-Charakter und bringt Licht und Ausblick auf eindrucksvolle Weise zusammen. Auch hier befindet sich eine weitere ca. 11 m² große Terrasse mit hof- und südseitiger Ausrichtung.
Die gesamte Wohnung ist mit einer modernen Fußbodenheizung, einer Klimaanlage sowie einer elektrischen Außenbeschattung ausgestattet – sämtliche Systeme sind bequem über ein zentrales Smart-Home-System steuerbar. So genießen Sie jederzeit ein perfekt abgestimmtes Raumklima und höchsten Wohnkomfort auf Knopfdruck.
Wohnungs-Highlights:
- Seltene, raumhohe Glasfront auf der gesamten Länge der oberen Wohnebene
- Zwei sonnige Terrassen pro Etage, hof- und südseitig ausgerichtet
- Großzügige Raumaufteilung mit offenem, loftartigem Charakter
- Klimaanlage, Fußbodenheizung und elektrische Außenbeschattung – zentral steuerbar über Smart-Home-System
- Ruhige Innenhoflage trotz exzellenter Infrastruktur
Lage-Highlights:
- U6 Währinger Straße/Volksoper sowie Straßenbahnlinien 40, 41, 42 und Buslinie 40A direkt vor der Tür
- Währinger Einkaufsstraße und der beliebte Kutschkermarkt in unmittelbarer Nähe
- Beste Infrastruktur mit Nahversorgung, Gastronomie und Freizeitangeboten
- Nähe zu AKH und Evangelischem Krankenhaus
- Gute Anbindung an das Radwegenetz (Gürtelradweg)
Diese Wohnung ist ein wahres Unikat für Menschen, die das Besondere suchen – mit beeindruckender Architektur, großzügigem Wohngefühl und moderner Technik in einer der charmantesten Lagen Wiens.
Monatliche Aufwendungen:
Betriebskostenakonto EUR 280,95
Liftkostenakonto EUR 135,80
Instandhaltungs-Rücklage EUR 143,52
Monatsvorschreibung EUR 560,27
Infrastruktur / Entfernungen
Gesundheit
Arzt <500m
Apotheke <500m
Klinik <500m
Krankenhaus <500m
Kinder & Schulen
Schule <500m
Kindergarten <500m
Universität <500m
Höhere Schule <500m
Nahversorgung
Supermarkt <500m
Bäckerei <500m
Einkaufszentrum <1.500m
Sonstige
Geldautomat <500m
Bank <500m
Post <500m
Polizei <1.000m
Verkehr
Bus <500m
U-Bahn <500m
Straßenbahn <500m
Bahnhof <500m
Autobahnanschluss <2.000m
Angaben Entfernung Luftlinie / Quelle: OpenStreetMap
Eckdaten
| Kaufpreis: | 948.000,00 € |
| Fläche: | 113,00 m² |
| Zimmer: | 4 |
Basisdaten zur Immobilie
| Objektnr: | 1619/100043 |
| Art: | Wohnung - Dachgeschoß |
| Land: | Österreich |
| Baujahr: | 2018 |
| Zustand: | Neuwertig |
| Kaufpreis: | 948.000,00 € |
| Provision: | 3% des Kaufpreises zzgl. 20% USt. |
| Wohnfläche: | 113,00 m² |
| Zimmer: | 4 |
| Bäder: | 2 |
| WC: | 2 |
| Terrassen: | 2 |
| Heizwärmebedarf: | B 48,70 kWh/m²a |
Ausstattung
Fußbodenheizung, Personenaufzug
Internet und TV
Information zur Internet und TV Versorgung hier
Ihre persönliche Beratung
Hubert Koller
RE/MAX Real Experts Immobilien lifetime GmbH
h.koller@remax-real-experts.at
+43 (0)1/ 470 25 00
+43 (0)699/ 189 28 281
