Exklusiver Altbaujuwel in Wiener Toplage | ZELLMANN IMMOBILIEN

Wohnung , 1010 Wien , Bellariastraße

Lage der Immobilie

Inmitten des kulturellen Herzens Wiens gelegen, vereint die Bellariastraße alles, was das urbane Leben besonders macht. Direkt hinter dem Naturhistorischen Museum und nur wenige Schritte vom prachtvollen Ring entfernt, wohnt man hier in einer der elegantesten und geschichtsträchtigsten Gegenden der Stadt. Die Ringstraße mit ihren beeindruckenden Palais, Theatern und Museen verleiht der Umgebung eine majestätische Atmosphäre, die ihresgleichen sucht. Gleichzeitig spürt man die kreative Energie des nahen MuseumsQuartiers, die lebendige Eleganz des ersten Bezirks und die kultivierte Ruhe des angrenzenden siebten. Es ist ein Ort, an dem Geschichte und Gegenwart in vollendeter Harmonie aufeinandertreffen – ein Lebensraum für Menschen mit Sinn für das Besondere.

Beschreibung der Immobilie

Exklusive Mietwohnung mit Blick auf das Naturhistorische Museum – Luxus auf höchstem Niveau in der Bellariastraße

In einer der prestigeträchtigsten Lagen Wiens – direkt hinter dem Naturhistorischen Museum – befindet sich diese außergewöhnlich luxuriöse Wohnung im 3. Obergeschoss eines stilvollen Altbaus. Auf rund 170 m² Wohnfläche vereint sie höchste Wohnqualität, modernste Technik und elegantes Design – ideal für Menschen mit Anspruch und Sinn für Ästhetik.

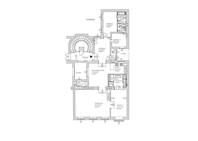
Raumaufteilung und Ausstattung

Die Wohnung besteht aus vier Zimmern, zwei luxuriösen Badezimmern, einem einladenden Vorraum, einem großzügigen Esszimmer mit angrenzender Designerküche sowie mehreren Nebenräumen. Jedes Detail dieser Immobilie wurde mit Bedacht gewählt, um höchsten Wohnkomfort zu garantieren.

Highlights der Ausstattung:

  • Repräsentatives Vorzimmer (ca. 21 m²) mit separatem Gäste-WC

  • Hochwertige Designerküche mit integriertem Weinkühler (ca. 10 m²), angrenzendes Esszimmer / Besprechungsraum (ca. 21 m²)

  • Wohnzimmer (ca. 45 m²) mit stilvollem Kamin, zahlreichen Fenstern und atemberaubendem Blick auf das Naturhistorische Museum

  • Masterbedroom (22 m²) mit begehbarem Schrankraum, angrenzendem Badezimmer mit Badewanne, Sauna und Infrarotkabine

  • Zwei weitere Schlafzimmer (15 m² und 8 m²) – jeweils mit eigenem Badezimmer und WC

  • GIRA Bussystemintegrierter Flatscreen im BadezimmerFußbodenheizungSafe

Technik und Infrastruktur

  • Gasetagenheizung

  • Strom-, Wasser-, Gas- und Kanalanschluss

  • Hochwertigste Materialien in allen Bereichen

  • Smart-Home-Steuerung über GIRA-Bussystem

Lage – Bellariastraße

Die Bellariastraße liegt in unmittelbarer Nähe zum ersten Bezirk und verläuft hinter dem Naturhistorischen Museum. Sie verbindet den Burgring und Dr.-Karl-Renner-Ring mit der Burggasse. Die zentrale Lage garantiert sowohl Ruhe als auch unmittelbare Nähe zu Kultur, Gastronomie und öffentlichem Verkehr.

Diese Lage zählt zu den exklusivsten Adressen Wiens – urban, charmant und geschichtsträchtig.

Trotz der zentralen Lage genießt man hier eine angenehme Ruhe und Privatsphäre – ohne auf Komfort verzichten zu müssen: Die öffentliche Verkehrsanbindung ist hervorragend. In unmittelbarer Nähe befinden sich Stationen der U2 und U3 sowie mehrere Straßenbahnlinien, die eine schnelle und direkte Verbindung in alle Teile der Stadt ermöglichen. So ist der Stephansplatz ebenso rasch erreichbar wie der Westbahnhof oder die Wiener Innenstadt mit all ihren Annehmlichkeiten.

Sollten wir Ihr Interesse geweckt haben, so ersuchen wir Sie in aller Höflichkeit um Ihre Anfrage über dieses Webportal. Wir senden Ihnen dann zeitnah sämtliche Unterlagen zu.

_____________

WICHTIG:

Da e-mails leider manchmal in SPAM oder WERBE Ordnern landen, ersuchen wir Sie diese zu kontrollieren. Wir antworten in der Regel binnen weniger Stunden. Auch am Wochenende! Teilen Sie uns bitte auch Ihre Telefonnummer mit, da wir Sie per SMS über die Versendung des Exposés verständigen können! Dieses Objekt wird Ihnen unverbindlich und freibleibend zur Miete angeboten. Oben angeführte Angaben basieren auf Informationen und Unterlagen des Eigentümers und sind unsererseits ohne Gewähr. 

Noch nichts gefunden? Wir informieren Sie über geeignete Immobilienangebote noch vor allen anderen.
Legen Sie jetzt Ihren individuellen Suchagenten unter folgendem Link an. Wir schicken Ihnen passende Immobilien exklusiv vorab zu. 

-> Suchagent anlegen

Der Immobilienmakler erklärt, dass er – entgegen dem in der Immobilienwirtschaft üblichen Geschäftsgebrauch des Doppelmaklers – einseitig nur für den Vermieter tätig ist.

Infrastruktur / Entfernungen

Gesundheit
Arzt <250m
Apotheke <500m
Klinik <750m
Krankenhaus <1.750m

Kinder & Schulen
Schule <500m
Kindergarten <1.000m
Universität <500m
Höhere Schule <750m

Nahversorgung
Supermarkt <250m
Bäckerei <250m
Einkaufszentrum <750m

Sonstige
Geldautomat <500m
Bank <500m
Post <250m
Polizei <250m

Verkehr
Bus <250m
U-Bahn <250m
Straßenbahn <250m
Bahnhof <250m
Autobahnanschluss <4.000m

Angaben Entfernung Luftlinie / Quelle: OpenStreetMap

Eckdaten

Objektnr: 25302
Art: Wohnung
Land: Österreich
Zustand: Neuwertig
Alter: Altbau
Gesamtmiete: 4.300,00
Kaltmiete (netto): 3.572,94 €
Kaltmiete: 3.909,09 €
Provision: Gemäß Erstauftraggeberprinzip bezahlt der Abgeber die Provision.
Betriebskosten: 295,15 €
MwSt Gesamt: 390,91 €
Wohnfläche: 164,00 m²
Gesamtfläche: 164,00 m²
Zimmer: 4,50
Bäder: 3
WC: 4
Keller: 6,00 m²
Heizwärmebedarf:  C  95,90 kWh/m²a
fGEE:  D  1,78
Immobilie merken Exposé

Ausstattung

Fliesen, Parkett, Gas, Etagenheizung, Fußbodenheizung, Wohnküche / offene Küche, Personenaufzug, Badewanne, Dusche, DV-Verkabelung, Kabel/Satelliten-TV, Alarmanlage, Sauna


Internet und TV

Information zur Internet und TV Versorgung hier


Immobilie anfragen


Ihre persönliche Beratung

ZELLMANN IMMOBILIEN GmbH | Vertrauen. Service. Qualität.

Nicole Zellmann

ZELLMANN IMMOBILIEN GmbH | Vertrauen. Service. Qualität.

E nicole@zellmann.at

T +43 699 15 15 22 01

H +43 699 15 15 22 01


ZELLMANN IMMOBILIEN GmbH | Vertrauen. Service. Qualität. - Immobilen Makler

Stuhlhofergasse 8, 1230 Wien-Mauer

Tel.: +43 699 15 15 22 00

https://www.zellmann.at