Luxuriöse Altbauwohnung mitten in der City - 1010 Wien zu mieten
Wohnung
- Etage,
1010
Wien
Lage der Immobilie
Die Rauhensteingasse 7 befindet sich im 1. Wiener Gemeindebezirk, im Herzen von Wien. Die Lage zeichnet sich durch ihre Nähe zu zahlreichen kulturellen, historischen und gastronomischen Highlights aus, die das Stadtzentrum prägen. Der berühmte Stephansplatz mit dem Stephansdom ist nur wenige Gehminuten entfernt und bietet eine ausgezeichnete Anbindung an den öffentlichen Verkehr sowie an die wichtigsten Einkaufsstraßen der Innenstadt. Die Rauhensteingasse selbst ist eine ruhige, aber zentrale Straße, die vor allem durch ihre gepflegten Altbauten und das historische Flair besticht. Sie liegt in unmittelbarer Nähe der Kärntnertorstraße und der Operngasse, zwei prominente Verkehrsachsen des ersten Bezirks. Dadurch ist die Umgebung sowohl gut erreichbar als auch von einer charmanten Mischung aus Wohn- und Geschäftsgebäuden geprägt. Die Infrastruktur in der Umgebung ist hervorragend: Öffentliche Verkehrsmittel wie die U-Bahn-Linien U1 und U3 sowie zahlreiche Bus- und Straßenbahnlinien sind in kurzer Distanz erreichbar. Die Gegend bietet außerdem eine Vielzahl von Einkaufsmöglichkeiten, Restaurants, Cafés und kulturellen Einrichtungen, darunter die Wiener Staatsoper, das Albertina Museum und das Theater an der Wien. Die Lage ist somit sowohl für Geschäftsreisende als auch für Kulturinteressierte und Stadtbewohner gleichermaßen attraktiv.Beschreibung der Immobilie
Eckdaten
| Gesamtmiete: | 2.995,00 € |
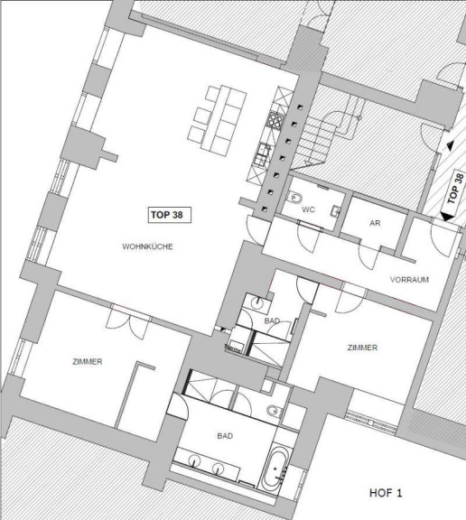
| Fläche: | 136,38 m² |
| Zimmer: | 3 |
Basisdaten zur Immobilie
| Objektnr: | 109268430 |
| Art: | Wohnung - Etage |
| Land: | Österreich |
| Baujahr: | 1786 |
| Zustand: | Gepflegt |
| Gesamtmiete: | 2.995,00 € |
| Kaltmiete (netto): | 2.451,00 € |
| Kaltmiete: | 2.995,00 € |
| Provision: | provisionsfrei für den Mieter |
| Betriebskosten: | 271,73 € |
| Wohnfläche: | 136,38 m² |
| Zimmer: | 3 |
| Bäder: | 2 |
| WC: | 2 |
| Heizwärmebedarf: | C 78,20 kWh/m²a |
| fGEE: | D 2,07 |
Ausstattung
Parkett, Fliesen, Gas, Etagenheizung, Einbauküche, Personenaufzug, Westbalkon, Badewanne, Dusche
Internet und TV
Information zur Internet und TV Versorgung hier
Ihre persönliche Beratung
Lara Steinbacher
ÖRAG Immobilien Vermittlung GmbH
lara.steinbacher@oerag.at
0043153473261
004366488962125
