Moderne Geschäfts- und Lagerflächen in 1120 Wien zu mieten
Einzelhandel
- Ladenlokal,
1120
Wien
Lage der Immobilie
Straßenbahn: 6, 18, 62 Bus: 59aBeschreibung der Immobilie
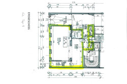
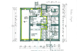
Eckdaten
| Gesamtmiete: | 4.660,76 € |
| Fläche: | 291,51 m² |
Basisdaten zur Immobilie
| Objektnr: | 109251747 |
| Art: | Einzelhandel - Ladenlokal |
| Land: | Österreich |
| Baujahr: | 1885 |
| Zustand: | Gepflegt |
| Gesamtmiete: | 4.660,76 € |
| Kaltmiete (netto): | 2.915,10 € |
| Kaltmiete: | 3.887,09 € |
| Miete / m²: | 10,00 € |
| Provision: | 3 BMM zzgl. USt |
| Betriebskosten: | 953,24 € |
| Gesamtfläche: | 291,51 m² |
| Heizwärmebedarf: | D 143,40 kWh/m²a |
| fGEE: | D 1,93 |
Internet und TV
Information zur Internet und TV Versorgung hier
Ihre persönliche Beratung
Milena Ivkovic
ÖRAG Immobilien Vermittlung GmbH
Milena.Ivkovic@oerag.at
0043153473310
