Sonnenverwöhntes Penthouse mit Lift & außergewöhnlicher Wohnqualität
Wohnung
,
1040
Wien
,
Schelleingasse 4
Lage der Immobilie
Alois-Drasche-Park / Schloß Belvedere / HauptbahnhofBeschreibung der Immobilie
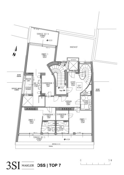
Top 7 - Maisonette Dachgeschoß
Dieses außergewöhnliche Penthouse vereint Luxus, Großzügigkeit und modernen Wohnkomfort in vollendeter Form. Auf zwei Ebenen gelegen und mit einem privaten Lift, der beide Etagen direkt erschließt, bietet diese Immobilie ein Wohngefühl der Extraklasse.
Großzügige Terrassen- und Freiflächen erweitern den Wohnraum nach draußen und laden zum Entspannen, Sonnen und Genießen ein. Ob gemütliche Lounge, Outdoor Dining oder private Grüninsel – hier findet sich Platz für jeden Lebensstil.
Die hochwertige Ausstattung erfüllt höchste Ansprüche: edle Materialien, modernste Haustechnik und ein harmonisches Designkonzept unterstreichen den exklusiven Charakter dieses außergewöhnlichen Penthouses.
Zum Verkauf steht eine großzügige 4-Zimmer-Wohnung mit rund 198 m² Wohnfläche sowie Terrassenflächen von ca. 77m² im neu errichteten Dachgeschoß.
- 1. Ebene:
- Vorraum
- 3 Schlafzimmer
- 3 Schrankräume
- 3 Bäder jeweils mit Dusche und WC
- Technikraum/Abstellraum
- Gäste WC
- Masterbedroom mit Zugang zum Balkon
- Ebene 2:
- riesige Wohnküche mit ca. 80m² sowie beidseitiger Terrassenfläche
- WC
Highlights Ausstattung
- Lift direkt in beide Etagen
- Luftwärmepumpe
- Bauteilaktivierung
- Klimaanlage
- Wandheizung
- Kamin
- Nach modernsten Standards renoviert
- Eiche Vollholz -Parkettboden / Fischgrät Verlegung
- moderne Decken- und Wandbeleuchtung
- hochwertige Sanitär- & Badausstattung
- Großformat Feinsteinzeug
- Vollholz Kassettentüren
- Fußbodenheizung
Schelleingasse -Altbauflair in Wieden
Die Liegenschaft befindet sich in attraktiver Lage im 4. Wiener Gemeindebezirk, Wieden – nur wenige Gehminuten vom beliebten Hauptbahnhof sowie dem Schloss Belvedere entfernt. Die Umgebung bietet eine hervorragende Infrastruktur mit zahlreichen Einkaufsmöglichkeiten, Restaurants, Cafés sowie Schulen und medizinischer Versorgung.
Die Anbindung an den öffentlichen Verkehr ist ausgezeichnet: In unmittelbarer Nähe befinden sich U-Bahn-, Straßenbahn- und Busstationen, die eine rasche Verbindung in die Innenstadt sowie zu anderen Stadtteilen garantieren. Auch Grünflächen wie der Schweizer Garten oder der Botanische Garten der Universität Wien sind fußläufig erreichbar und laden zur Erholung ein.
Die zentrale Lage kombiniert urbanes Lebensgefühl mit hoher Wohn- und Lebensqualität.
Nebenkosten
Der guten Ordnung halber halten wir fest, dass, sofern im Angebot nicht anders vermerkt, bei erfolgreichem Abschlussfall eine Provision anfällt, die den in der Immobilienmaklerverordnung BGBI. 262 und 297/1996 festgelegten Sätzen entspricht – das sind 3 % des Kaufpreises zzgl. 20 % USt. Diese Provisionspflicht besteht auch dann, wenn Sie die Ihnen überlassenen Informationen an Dritte weitergeben. Es besteht ein wirtschaftliches Naheverhältnis zum Verkäufer.
Wir weisen darauf hin, dass zwischen dem Vermittler und dem zu vermittelnden Dritten ein familiäres oder wirtschaftliches Naheverhältnis besteht.
Der Vermittler ist als Doppelmakler tätig.
Infrastruktur / Entfernungen
Gesundheit
Arzt <75m
Apotheke <175m
Klinik <450m
Krankenhaus <1.075m
Kinder & Schulen
Schule <300m
Kindergarten <125m
Universität <1.025m
Höhere Schule <850m
Nahversorgung
Supermarkt <175m
Bäckerei <75m
Einkaufszentrum <650m
Sonstige
Geldautomat <100m
Bank <100m
Post <200m
Polizei <450m
Verkehr
Bus <100m
U-Bahn <225m
Straßenbahn <150m
Bahnhof <150m
Autobahnanschluss <2.150m
Angaben Entfernung Luftlinie / Quelle: OpenStreetMap
Eckdaten
| Objektnr: | 21732 |
| Art: | Wohnung |
| Land: | Österreich |
| Baujahr: | 1900 |
| Zustand: | Erstbezug |
| Alter: | Altbau |
| Kaufpreis: | 2.495.000,00 € |
| Provision: | 3% des Kaufpreises zzgl. 20% USt. |
| Wohnfläche: | 197,70 m² |
| Zimmer: | 4 |
| Bäder: | 3 |
| WC: | 2 |
| Terrassen: | 4 |
Ausstattung
Parkett, Fliesen, Fußbodenheizung, Kamin, Personenaufzug, Nordbalkon, Südbalkon, Bad mit Fenster, Badewanne, Dusche
Internet und TV
Information zur Internet und TV Versorgung hier
Ihre persönliche Beratung
Mario Häring
3SI Makler GmbH
m.haering@3si.at
+43 1 607 58 58 - 54
+43 660 94 71 461
F +43 1 607 55 80
