NEU! Photovoltaikanlage • Bezugsfertig • 19 Eigentumswohnungen • Schlüsselfertig • Urban + Natur • 1220 Wien • Balkon / Terrasse / Loggia / Garten • 2–4 Zimmer •
Wohnung
- Dachgeschoß,
1220
Wien
Lage der Immobilie
U2 SEESTADT / LOBAUBeschreibung der Immobilie
- PROJEKT:
Zum Verkauf gelangen 19 hochmoderne Neubau-Eigentumswohnungen mit ca. 2–4 Zimmern sowie großzügigen Außenflächen (Loggia / Balkon / Terrasse / Garten).
- STATE-OF-THE-ART-TECHNIK:
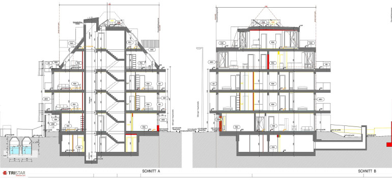
Ausstattung: Photovoltaikanlage, Klimaanlage in den Dachgeschossen (Ebene 1 und 2), Luftwärmepumpe, Fußbodenheizung, Echtholz-Parkettboden (Eiche), dreifach verglaste Fenster mit Außenbeschattung, Ziegel-Massivbauweise, Lift, Keller, hochwertige Materialien sowie ein stilvolles, modernes und zeitloses Design.
- BEZUGSTERMIN:
Februar - März 2026!
- VIEL ZEIT – WENIGER GELD:
Diese Top-Neubauwohnungen stellen eine perfekte Gelegenheit nicht nur für Eigennutzer, sondern auch für Kapitalanleger dar.
Mit ihrer universellen Wohnungsgröße, Top-Ausstattung und Top-Lage eignen sie sich ideal für alle, die in stabile Immobilienwerte investieren möchten (Grundbuch statt Sparbuch) und damit ihre inflationsgeschützte finanzielle Unabhängigkeit und Sicherheit aufbauen wollen.
Gerade im Ruhestand verfügt man oft über sehr viel Zeit – jedoch über begrenztere finanzielle Mittel (Pensionslücke).
Eine Eigentumswohnung, für die man später keine Miete mehr bezahlen muss – oder im Idealfall sogar Mieteinnahmen erzielt – kann diese Pensionslücke wirksam schließen und echte finanzielle Freiheit ermöglichen.
Wie man so treffend sagt: "Jeder zahlt im Laufe seines Lebens ein bis zwei Immobilien. Die einzige Entscheidung ist: Wem sollen sie am Ende gehören?"
- INDIVIDUELL ANGEPASSTE FINANZIERUNG:
Unsere ausgewählten und erfahrenen Finanzierungspartner unterstützen Sie gerne bei der Entwicklung einer optimal auf Ihre Bedürfnisse abgestimmten Finanzierungslösung.
Top-Finanzierungskonzepte sowohl für Eigennutzer als auch für Anleger stehen bereit und warten auf Ihre Anfrage. Weitere Informationen erhalten Sie beim Besichtigungstermin!
- VERFÜGBARE WOHNUNGEN:
__________
GARTENWOHNUNGEN:
- Top 1: VERKAUFT
- Top 2: VERKAUFT
__________
Top 3: WNFL ca. 89,04 m² (4 Zimmer) + Terrasse ca. 7,07 m² + GARTEN ca. 42,51 m² + ER (Keller) ca. 2 m²
-
Kaufpreis Eigennutzer: EUR 489.000 I Kaufpreis Anleger: 461.000 zzgl. 20% USt.
__________
1. STOCK:
- Top 4: VERKAUFT
- Top 5: VERKAUFT
- Top 6: VERKAUFT
-
Top 7: VERKAUFT
__________
- Top 8: VERKAUFT
__________
2. STOCK:
__________
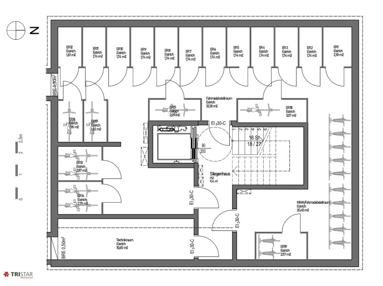
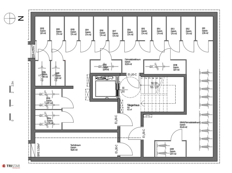
Top 9: WNFL ca. 43 m² (2 Zimmer) + LOGGIA ca. 3 m² + ER (Keller) ca. 2 m²
-
Kaufpreis Eigennutzer: EUR 229.000 I Kaufpreis Anleger: 219.000 zzgl. 20% USt.
Top 10: WNFL ca. 55,43 m² (3 Zimmer) + Terrasse ca. 9,40 m² + ER (Keller) ca. 2 m²
-
Kaufpreis Eigennutzer: EUR 339.000 I Kaufpreis Anleger: 326.000 zzgl. 20% USt.
- Top 11: VERKAUFT
- Top 12: VERKAUFT
- Top 13: VERKAUFT
__________
DACHGESCHOSS 1:
__________
- Top 14: VERKAUFT
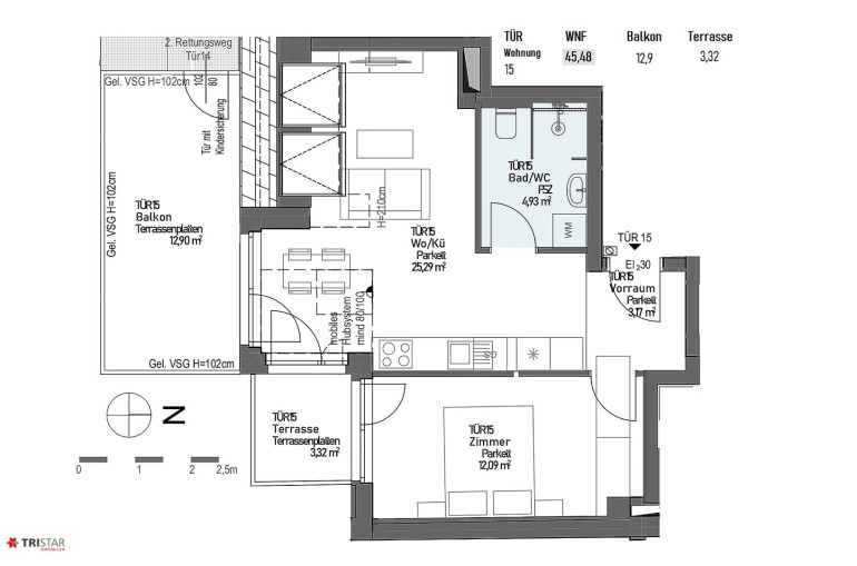
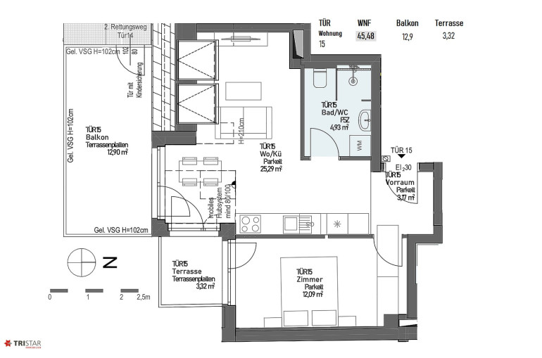
Top 15: WNFL ca. 45,48 m² (2 Zimmer) + Terrasse/ Balkon ca.16,22 m² + ER (Keller) ca. 2,09 m²
- Kaufpreis Eigennutzer: EUR 279.000 I Kaufpreis Anleger: 266.000 zzgl. 20% USt.
__________
TOP 16: WNFL ca. 45,30 m² (3 Zimmer) + Terrasse/ Balkon ca. 16,33 m² + ER (Keller) ca. 2 m²
- Kaufpreis Eigennutzer: EUR 279.000 I Kaufpreis Anleger: 266.000 zzgl. 20% USt.
__________
Top 17: WNFL ca. 66,44 m² (3 Zimmer) + Terrasse ca.6 m² + ER (Keller) ca. 2 m²
- Kaufpreis Eigennutzer: EUR 369.000 I Kaufpreis Anleger: 354.000 zzgl. 20% USt.
__________
DACHGESCHOSS 2:
__________
TOP 18: WNFL ca. 57 m² (2 Zimmer + AR) + 4 Terrassen insg. ca. 24 m² + ER (Keller) ca. 3,07 m²
- Kaufpreis Eigennutzer: EUR 349.000 I Kaufpreis Anleger: 332.000 zzgl. 20% USt.
- Top 19: VERKAUFT
__________
- KEIN BAURECHT, KEINE PACHT:
Sie erwerben hier IHR EIGENHEIM und EIGENTUMSGRUND!
- LAGE:
Diverse Einkaufsmöglichkeiten für den täglichen Lebensbedarf sowie öffentliche Verkehrsmittel sind in Gehweite vorhanden.
Ein detailliertes Lageexposé (65 Seiten) ist vorhanden und wird umgehend nach Anfrage übermittelt!
-
VERMITTLUNGSPROVISION / DOPPELMAKLERTÄTIGKEIT:
Der Ordnung halber wird darauf hingewiesen, dass die Vermittlungsprovision 3 % des Kaufpreises zuzüglich 20 % USt. (insgesamt 3,6 %) beträgt und mit Zustandekommen des vermittelten Rechtsgeschäfts (Annahme des Kaufanbots ohne aufschiebende Bedingungen durch den Verkäufer) fällig wird. Der Makler ist als Doppelmakler tätig.
- NEU! Photovoltaikanlage • Bezugsfertig • 19 Eigentumswohnungen • Schlüsselfertig • Urban + Natur • 1220 Wien • Balkon / Terrasse / Loggia / Garten • 2–4 Zimmer •
Wir weisen darauf hin, dass zwischen dem Vermittler und dem zu vermittelnden Dritten ein familiäres oder wirtschaftliches Naheverhältnis besteht.
Der Vermittler ist als Doppelmakler tätig.
Eckdaten
| Objektnr: | 28335 |
| Art: | Wohnung - Dachgeschoß |
| Land: | Österreich |
| Baujahr: | 2025 |
| Zustand: | Erstbezug |
| Alter: | Neubau |
| Kaufpreis: | 279.000,00 € |
| Kaufpreis / m²: | auf Anfrage |
| Provision: | 3% des Kaufpreises zzgl. 20% USt. |
| Wohnfläche: | 45,48 m² |
| Gesamtfläche: | 61,63 m² |
| Zimmer: | 2 |
| Bäder: | 1 |
| WC: | 1 |
| Balkone: | 1 |
| Keller: | 2,09 m² |
| Heizwärmebedarf: | B 45,10 kWh/m²a |
| fGEE: | A+ 0,70 |
Ausstattung
Fliesen, Parkett, Fußbodenheizung, Personenaufzug, Südbalkon, Dusche
Internet und TV
Information zur Internet und TV Versorgung hier
Ihre persönliche Beratung
TRISTAR Immobilien
TRISTAR Immobilien
tristar@tristar.at
+43 676 901 73 74
