Halle rund 750 m²
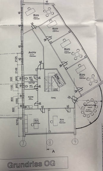
Büro / Praxis
- Ausstellungsfläche,
6111
Volders
Beschreibung der Immobilie
Industriehalle
- sofort verfügbar
- frei zugängliche Halle
- teilbar
- Boden und Deckenheizung bzw. Kühlung
- Rolltor
- großzügige Büroflächen verfügbar
- Außenparkplätze
- LKW Zufahrt
- Gewerbegebiet
Fordern Sie unverbindlich unsere Objektunterlagen an. Wir freuen uns über Ihre Kontaktaufnahme.
Eckdaten
| Fläche: | 750,00 m² |
Basisdaten zur Immobilie
| Objektnr: | 0013000315 |
| Art: | Büro / Praxis - Ausstellungsfläche |
| Land: | Österreich |
| Baujahr: | 2002 |
| Provision: | 2 Bruttomonatsmieten plus 20% USt. |
| Betriebskosten: | 1.880,00 € |
| Nutzfläche: | 750,00 m² |
| Gesamtfläche: | 750,00 m² |
Ausstattung
Gas, Fußbodenheizung
Internet und TV
Information zur Internet und TV Versorgung hier
Ihre persönliche Beratung
Team Gasser & Gasser
Raiffeisen Tirol Schwaz
immobilien@rrb-schwaz-wattens.at
5242698056065
