Beschreibung der Immobilie
Im Grünen Mödling – Grüne Stadtvillen
Nachhaltig wohnen. Urban leben. Natürlich ankommen.
Mit Sommer 2026 werden vier baulich voneinander getrennte Stadtvillen in moderner Holzbauweise bezugsfertig. Die jeweils viergeschossigen Gebäude umfassen insgesamt 47 hochwertig geplante Wohnungen mit zwei bis fünf Zimmern und bieten zeitgemäßen Wohnraum für unterschiedlichste Lebensmodelle.
Eine eingeschossige Tiefgarage mit 71 Stellplätzen steht den Bewohnerinnen und Bewohnern zur Verfügung.
Die innovative Holzbauweise setzt neue Maßstäbe in puncto Nachhaltigkeit und Wohnqualität. Im Inneren der Wohnungen bleibt der natürliche Baustoff teilweise sichtbar und schafft eine warme, entschleunigende Raumatmosphäre mit offenem, wohnlichem Charakter. Durchdachte Grundrisse sorgen für optimale Raumnutzung und hohen Komfort.
Alle Wohnungen verfügen über private Freiflächen und verbinden so urbanes Wohnen mit einem naturnahen Lebensgefühl. Ergänzt wird das nachhaltige Gesamtkonzept durch Photovoltaikanlagen auf den Dächern sowie eine moderne Geothermieanlage, die das Gebäudeensemble klimaschonend mit Wärme versorgt.
Die versetzte Anordnung der Stadtvillen fügt sich harmonisch in die Umgebung ein und schafft großzügige, offene Vorplätze sowie gemeinschaftliche Freibereiche. Kinderspielplätze, Gemeinschaftsgärten und liebevoll gestaltete Grünräume prägen den Zwischenraum der Gebäude. Eine teilweise Fassadenbegrünung unterstreicht das grüne, zukunftsorientierte Erscheinungsbild des Projekts.
So entsteht ein Wohnumfeld, das zum Verweilen einlädt, Begegnungen fördert und ein lebendiges, nachbarschaftliches Miteinander ermöglicht – ein Zuhause für alle, die Nachhaltigkeit, Komfort und Lebensqualität vereinen möchten.
Ganz in der Nähe der Anlage befindet sich ein weiteres Projekt – „Am Fliegenspitz“ – in dem wir ebenso Eigentums- sowie Vorsorgewohnungen anbieten. Für nähere Informationen hierfür stehen wir selbstverständlich auch gerne zur Verfügung.
Fertigstellung: voraussichtlich Sommer 2026
In der hauseigenen Tiefgarage stehen Stellplätze zum Ankauf zur Verfügung.
Kaufpreise ab EUR 25.000,-
Der Verkauf erfolgt provisionsfrei für den Käufer!
Das Projekt:
- 47 Eigentums- und Vorsorgewohnungen
- Wohnungsgrößen von 53 m² bis 104 m²
- Tiefgarage mit 71 Stellplätzen (Installation einer E-Ladestation möglich)
- Gemeinschaftliche Freibereiche wie Kinderspielplätze und Gemeinschaftsgärten
- Fahrrad- und Kinderwagenabstellräume
- Eine Einlagerungsmöglichkeit je Wohnung im Untergeschoss
- Private Freiflächen in Form von Gärten, Balkonen oder Terrassen
Die Ausstattung:
- Fußbodenheizung und -temperierung mittels Sole-Wasser-Wärmepumpe
- Photovoltaikanlagen
- Hochwertige Eichenparkettböden
- Elegantes Feinsteinzeug in den Nassräumen
- Holz-Holz-Fenster mit 3-fach-Verglasung
- Außenliegender, elektrisch betriebener Sonnenschutz
- Markisen auf den Balkonen mit automatischer Windüberwachung im Dachgeschoss
- Vorbereitung zur nachträglichen Installation von Split-Klimageräten in allen Wohnungen
Die Lage & Infrastruktur:
Die Stadtvillen liegen in einer zentralen und zugleich angenehmen Wohnlage in Mödling, einer Stadt mit ausgezeichneter Infrastruktur und hoher Lebensqualität. Die Innenstadt ist in 10-15 Minuten zu Fuß oder in 5-10 Minuten mit Rad, Auto und Öffis erreichbar. Auch Wien erreicht man nach nur rund 45 Minuten mit dem Auto oder Zug.
Öffentliche Anbindung:
Die Stationen der Buslinien 259 und 263 befinden sich nur 4 Gehminuten von der Haustüre entfernt.
Der Bahnhof Mödling ist dadurch schnell erreichbar und bietet u.a. eine schnelle Verbindung nach Wien.
Nahversorgung:
Supermärkte, Bäckereien, Apotheken sowie weitere Geschäfte des täglichen Bedarfs befinden sich im nahen Umfeld. Auch Cafés und Restaurants sind rasch erreichbar.
Medizinische Versorgung:
Eine sehr gute medizinische Infrastruktur mit Allgemein- und Fachärzten, Apotheken sowie dem Landesklinikum Mödling sorgt für umfassende Versorgung.
Schulen und Kindergärten:
Kindergärten sowie Volks- und weiterführende Schulen sind ebenfalls teils fußläufig erreichbar – ideal für Familien.
Einen detaillierteren Einblick finden Sie auf unserer EHL-Projekthomepage!
Wir weisen darauf hin, dass zwischen dem Vermittler und dem zu vermittelnden Dritten ein familiäres oder wirtschaftliches Naheverhältnis besteht.
Der Vermittler ist als Doppelmakler tätig.
Infrastruktur / Entfernungen
Gesundheit
Arzt <500m
Apotheke <500m
Klinik <750m
Krankenhaus <2.000m
Kinder & Schulen
Schule <250m
Kindergarten <250m
Höhere Schule <500m
Nahversorgung
Supermarkt <250m
Bäckerei <1.250m
Einkaufszentrum <1.500m
Sonstige
Bank <1.000m
Geldautomat <1.000m
Post <1.000m
Polizei <1.250m
Verkehr
Bus <250m
U-Bahn <6.500m
Bahnhof <1.500m
Autobahnanschluss <3.750m
Straßenbahn <3.750m
Angaben Entfernung Luftlinie / Quelle: OpenStreetMap
Eckdaten
| Objektnr: | 91842 |
| Art: | Wohnung |
| Land: | Österreich |
| Baujahr: | 2026 |
| Zustand: | Erstbezug |
| Alter: | Neubau |
| Kaufpreis: | 746.500,00 € |
| Provision: | Provision bezahlt der Abgeber. |
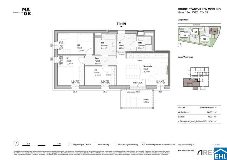
| Wohnfläche: | 93,86 m² |
| Zimmer: | 4 |
| Bäder: | 2 |
| WC: | 2 |
| Balkone: | 1 |
| Keller: | 3,28 m² |
| Heizwärmebedarf: | A 23,60 kWh/m²a |
| fGEE: | A++ 0,43 |
Ausstattung
Parkett, Fliesen, Solarenergie, Fußbodenheizung, Wohnküche / offene Küche, Personenaufzug, Westbalkon, Bad mit Fenster, Badewanne, Dusche, Tiefgarage
Internet und TV
Information zur Internet und TV Versorgung hier
Ihre persönliche Beratung
DI Birgita EHRENBERGER
EHL Immobilien GmbH
E b.ehrenberger@ehl.at
T +43-1-512 76 90-422
H +43 664 88160139
