Beschreibung der Immobilie
Im Grünen Mödling – Wohnhausanlage am Fliegenspitz
Nachhaltig wohnen. Entspannt leben.
In einer der lebenswertesten Regionen südlich von Wien entsteht ein modernes Wohnensemble, das Architektur, Nachhaltigkeit und Lebensqualität harmonisch vereint. Zwischen Quellenstraße, Grutschgasse und Guntramsdorfer Straße gelegen, präsentiert sich die Wohnhausanlage am Fliegenspitz in Mödling als ruhiger Rückzugsort mit bester Anbindung und viel Grün – ideal für individuelle Lebensentwürfe.
Zehn moderne Baukörper mit drei bis vier Geschossen sind über ein barrierefreies, halböffentliches Wegesystem miteinander verbunden und schaffen ein offenes, nachbarschaftliches Wohnumfeld. Insgesamt entstehen 116 schlüsselfertige Wohnungen mit 1 bis 5 Zimmern, ergänzt durch private Eigengärten, Balkone oder Terrassen.
Haus A bietet zudem zwei moderne Praxisräumlichkeiten mit ca. 94 m² und ca. 217 m² mit Parkplätzen direkt vor dem Eingang.
Im Untergeschoß befinden sich Einlagerungsräume sowie 177 Stellplätze.
Großzügige Freibereiche und Kinderspielplätze sind integraler Bestandteil des Konzepts und sorgen für eine hohe Aufenthaltsqualität – für entspanntes Wohnen in jeder Lebensphase.
Geplante Fertigstellung: Ende 2026
In der hauseigenen Tiefgarage stehen Stellplätze ab EUR 25.000,-- zum Ankauf zur Verfügung.
Der Verkauf erfolgt provisionsfrei für den Käufer!
Das Projekt
- 116 Eigentums- und Vorsorgewohnungen mit 1 bis 5 Zimmern
- Wohnungsgrößen von ca. 31 bis 130 m²
- Private Freiflächen wie Gärten, Balkone oder Terrassen
- Einlagerungsräume im Unter- und Dachgeschoß
- 2 Praxisräumlichkeiten (belagsfertige Ausführung/Edelrohbau)
- 177 Kfz-Stellplätze in der Tiefgarage
- Ziegelmauerwerk mit integriertem Dämmstoff kombiniert mit Stahlbeton
- Gemeinschaftliche Freibereiche wie Gärten und Kinderspielplätze
- Kinderwagen- und Fahrradabstellräume
Die Ausstattung
- Heizung und Warmwasser mittels Kombination aus Geothermie und Fernwärme
- Wärmeabgabe bzw. Temperierung im Sommer über Bauteilaktivierung
- PV-Anlagen
- Vorrüstung Klimaanlagen für Dachgeschoßwohnungen
- Kunststoff-/Alufenster mit 3-fach-Verglasung
- Beschattung mittels elektrisch betriebener Außenraffstores
- Weitzer Parkett, Eiche Kaschmir in den Wohnräumen
- Feinsteinzeug Cerabella Bari in den Nassräumen
- Hochwertige Sanitärausstattung
Die Lage
Im grünen Mödling vereinen sich Natur, Stadtleben und Lebensqualität auf besondere Weise. Eine ausgezeichnete Infrastruktur vor Ort bietet alles, was den Alltag angenehm und unkompliziert macht. Gleichzeitig lädt der angrenzende Wienerwald mit vielfältigen Freizeit-, Kultur- und Naturangeboten zur Erholung ein. Dank der sehr guten Anbindung sowie der Nähe zu Bahnhof und Autobahn ist Wien in rund 45 Minuten bequem erreichbar.
Die Mödlinger Innenstadt liegt nur 5–10 Minuten mit dem Rad, Auto oder Bus entfernt und ist auch fußläufig in etwa 10–15 Minuten erreichbar, der Bahnhof in ca. 20 Minuten.
Als ehemaliger Sitz der Babenberger überzeugt Mödling mit einem lebendigen Mix aus Geschichte, Kultur und urbanem Leben. Entlang der charmanten Hauptstraße finden sich zahlreiche Nahversorger, Fachärzte, Bäcker, Restaurants, Cafés, Geschäfte, Fitnessstudios, Banken und Museen – alles, was das tägliche Leben bereichert.
Buslinien
- Linie 1 (Bahnhof – Prießnitztal)
- Linie 3 (Bahnhof – WIFI/Mödlinger Zentrum)
- Linie 263 (Bahnhof – Guntramsdorf)
Ganz in der Nähe der Anlage befindet sich ein weiteres Projekt – „Grüne Stadtvillen“ – in dem wir ebenso Eigentums- sowie Vorsorgewohnungen anbieten. Für nähere Informationen hierfür stehen wir selbstverständlich auch gerne zur Verfügung.
Einen detaillierteren Einblick finden Sie auf unserer EHL-Projekthomepage!
Wir weisen darauf hin, dass zwischen dem Vermittler und dem zu vermittelnden Dritten ein familiäres oder wirtschaftliches Naheverhältnis besteht.
Der Vermittler ist als Doppelmakler tätig.
Infrastruktur / Entfernungen
Gesundheit
Arzt <650m
Apotheke <250m
Klinik <700m
Krankenhaus <1.650m
Kinder & Schulen
Schule <250m
Kindergarten <250m
Höhere Schule <325m
Nahversorgung
Supermarkt <175m
Bäckerei <1.175m
Einkaufszentrum <1.300m
Sonstige
Bank <825m
Geldautomat <825m
Post <825m
Polizei <1.050m
Verkehr
Bus <50m
U-Bahn <6.225m
Bahnhof <1.250m
Autobahnanschluss <3.400m
Straßenbahn <3.725m
Angaben Entfernung Luftlinie / Quelle: OpenStreetMap
Eckdaten
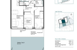
| Kaufpreis: | 465.000,00 € |
| Fläche: | 68,88 m² |
| Zimmer: | 3 |
Basisdaten zur Immobilie
| Objektnr: | 92297 |
| Art: | Wohnung |
| Land: | Österreich |
| Baujahr: | 2026 |
| Zustand: | Erstbezug |
| Alter: | Neubau |
| Kaufpreis: | 465.000,00 € |
| Provision: | Provision bezahlt der Abgeber. |
| Wohnfläche: | 68,88 m² |
| Zimmer: | 3 |
| Bäder: | 1 |
| WC: | 1 |
| Terrassen: | 1 |
| Garten: | 59,19 m² |
| Keller: | 2,80 m² |
| Heizwärmebedarf: | B 26,80 kWh/m²a |
| fGEE: | A+ 0,62 |
Ausstattung
Parkett, Fliesen, Erdwärme, Fernwärme, Personenaufzug, Südbalkon, Badewanne
Internet und TV
Information zur Internet und TV Versorgung hier
Ihre persönliche Beratung
Ilse Reindl
EHL Immobilien GmbH
i.reindl@ehl.at
+43 1 5127690 410
+43 664 881 601 43
