Lage der Immobilie
Sankt Andrä-Wördern liegt am Südostrand des Tullnerfelds in den Ausläufern des Wienerwalds in Niederösterreich. Die Fläche der Marktgemeinde umfasst 39,37 Quadratkilometer. 56,08 Prozent der Fläche sind bewaldet. Ein Teil des Gemeindegebietes ist als Naturpark Eichenhain unter Schutz gestellt. Die Region ist nicht nur gut öffentlich angebunden sondern verfügt auch über viele Nahversorgern und Supermärkte.Beschreibung der Immobilie
Das zu verkaufende Haus ist etwas ganz Besonderes!
Sie betreten das Haus durch einen Vorraum, der mit einem großen Einbauschrank versehen ist, in dem Sie alle Mäntel und Jacken verstauen können
Rechts neben dem Eingangsbereich befindet sich eine kleine Wohneinheit, die entweder als Einliegerwohnung oder als Büro verwendet werden kann.
Diese Einheit verfügt über einen Wohnbereich und über ein extra Bad. Wenn man möchte, könnte man über eine noch zu errichtende Treppe auch ein Schlafzimmer erreichen.
Geht man im Eingangsbereich weiter, kommt man in das große Wohnzimmer. Durch die großen Fensterflächen ist der Wohnbereich nicht nur sehr hell, sondern es gehen auch Innen- und Außenbereich fließend ineinander über. Der Wohnbereich gliedert sich in den Essbereich, der unmittelbar neben der separaten Küche liegt, und in den eigentlichen Wohnbereich mit einem gemütlichen Kamin. Hier gibt es Fenster in nahezu alle Himmelsrichtungen und dadurch ist die Beleuchtung einfach ideal.
Die Küche ist wunderschön verbaut und mit allen nötigen Elektrogeräten eingerichtet, die Sie für modernes Kochen brauchen. Sie verfügt über einen großen amerikanischen Kühlschrank und über ein großes Fenster zur Terrasse und zum Pool hin. Daher ergibt sich die Möglichkeit, hier ihre Familie oder ihre Gäste direkt zu versorgen. Darüber hinaus gibt s auch noch eine sehr große Speisekammer.
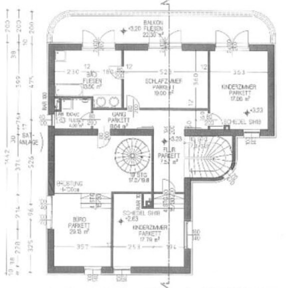
Im ersten Stock befinden sich die 3 Schlafzimmer des Hauses und ein großes Badezimmer. Ein südseitiger Balkon ergänzt hier das Wohngefühl perfekt.
Der Garten ist nahezu uneinsichtig und wird durch den großen Pool dominiert, aber auch Blumen und Gemüse finden genügend Platz. Der Pool ist von einer großzügigen Terrasse eingerahmt und hat natürlich auch eine Außendusche.
Die Terrasse lädt Sie zu gemütlichen Stunden mit Freunden oder einfach nur zum Relaxen ein.
Natürlich verfügt das Haus auch über einen großen Keller, der als Sauna oder Fitnessbereich verwendet werden kann und jede Möglichkeit für Stauraum bietet.
Der Carport für 2 Autos hat einen direkten Zugang zum Haus und ist mit einem Elektroanschluss ausgestattet.
Anschauen lohnt sich auf jeden Fall!
Noch nichts gefunden? Wir suchen gerne die passende Immobilie für sie und informieren Sie über geeignete Immobilienangebote noch vor allen anderen.
Legen Sie jetzt Ihren individuellen Suchagenten unter folgendem Link an. Wir schicken Ihnen passende Immobilien exklusiv vorab zu ihr Denich Real Immobilienservice
Suchagent anlegen
Der Vermittler ist als Doppelmakler tätig.
Infrastruktur / Entfernungen
Gesundheit
Arzt <3.000m
Apotheke <3.000m
Krankenhaus <9.000m
Klinik <6.000m
Kinder & Schulen
Kindergarten <1.000m
Schule <3.000m
Universität <4.000m
Nahversorgung
Supermarkt <3.000m
Bäckerei <3.500m
Einkaufszentrum <10.000m
Sonstige
Bank <3.000m
Geldautomat <3.000m
Post <3.000m
Polizei <3.000m
Verkehr
Bus <500m
Bahnhof <4.500m
Autobahnanschluss <9.500m
Straßenbahn <9.500m
Flughafen <7.500m
Angaben Entfernung Luftlinie / Quelle: OpenStreetMap
Eckdaten
| Objektnr: | 1345 |
| Art: | Haus - Einfamilienhaus |
| Land: | Österreich |
| Zustand: | Gepflegt |
| Alter: | Neubau |
| Kaufpreis: | 1.200.000,00 € |
| Provision: | 3% des Kaufpreises zzgl. 20% USt. |
| Wohnfläche: | 240,00 m² |
| Nutzfläche: | 360,00 m² |
| Grundstücksfl.: | 1.000,00 m² |
| Zimmer: | 6 |
| Bäder: | 2 |
| WC: | 2 |
| Terrassen: | 1 |
| Stellplätze: | 2 |
| Garten: | 600,00 m² |
| Keller: | 120,00 m² |
Ausstattung
Parkett, Fliesen, Gas, Zentralheizung, Einbauküche, Südbalkon, Carport
Internet und TV
Information zur Internet und TV Versorgung hier
Ihre persönliche Beratung
Martina Denich-Kobula
DENICH-REAL Immobilien GmbH
E md@denich-real.at
T +43 664 4609630
H +43 664 4609630
