Charmantes, Sonniges Grundstück in ST. Peter mit gepflegtem Bestandsgebäude!
Haus
- Einfamilienhaus,
8042
Graz
Lage der Immobilie
Die Liegenschaft befindet sich in ruhiger und gewachsener Wohnlage im Grazer Bezirk St. Peter, einer der beliebtesten und wertstabilsten Wohngegenden der Stadt. Der Kitnerweg ist eine verkehrsberuhigte Wohnstraße, geprägt von Einfamilienhäusern, kleineren Wohnanlagen und viel Grün. Die Umgebung bietet eine sehr gute Infrastruktur: Einkaufsmöglichkeiten, Schulen, Kindergärten sowie medizinische Versorgung befinden sich in kurzer Distanz. Die Anbindung an den öffentlichen Verkehr ist gut, ebenso die rasche Erreichbarkeit der Grazer Innenstadt sowie wichtiger Verkehrsachsen. Erholungs- und Freizeitmöglichkeiten wie Spazier- und Grünflächen befinden sich in unmittelbarer Umgebung und unterstreichen den hohen Wohn- und Freizeitwert der Lage. Die Kombination aus Ruhe, guter Besonnung und urbaner Nähe macht diesen Standort sowohl für Eigennutzer als auch für Investoren besonders attraktiv.Beschreibung der Immobilie
Wohnen mit Perspektive – Liegenschaft am Kitnerweg, Graz
In ruhiger und begehrter Wohnlage im Grazer Bezirk St. Peter befindet sich diese attraktive Liegenschaft, die sofortiges Wohnen mit langfristigen Gestaltungsmöglichkeiten vereint. Der Kitnerweg ist eine angenehme Wohnstraße, geprägt von Grün, Einfamilienhäusern und hoher Lebensqualität.
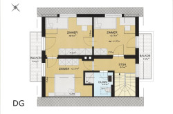
Auf dem Grundstück steht ein charmantes Wohnhaus aus dem Jahr 1955, das 2020 renoviert wurde und sich heute in einem sehr gut bewohnbaren Zustand präsentiert. Das Gebäude eignet sich ideal für den sofortigen Einzug, als gemütliches Zuhause oder als Übergangslösung, während zukünftige Pläne reifen.
Gleichzeitig bietet das Grundstück selbst besonderes Potenzial: Ob Erweiterung des bestehenden Hauses, individuelle Anpassungen oder eine langfristige Neugestaltung – hier eröffnen sich vielfältige Möglichkeiten, das Zuhause an die eigenen Bedürfnisse anzupassen und weiterzuentwickeln.
Die Kombination aus ruhiger Lage, guter Besonnung, gewachsenem Wohnumfeld und sehr guter Infrastruktur macht diese Liegenschaft sowohl für Familien als auch für Paare oder Eigennutzer mit Zukunftsplänen besonders attraktiv. Einkaufsmöglichkeiten, Schulen, öffentliche Verkehrsanbindungen und die Grazer Innenstadt sind bequem erreichbar.
Wir weisen darauf hin, dass zwischen dem Vermittler und dem zu vermittelnden Dritten ein familiäres oder wirtschaftliches Naheverhältnis besteht.
Der Vermittler ist als Doppelmakler tätig.
Infrastruktur / Entfernungen
Gesundheit
Arzt <1.000m
Apotheke <1.000m
Klinik <3.000m
Krankenhaus <3.500m
Kinder & Schulen
Schule <500m
Kindergarten <1.000m
Universität <2.000m
Höhere Schule <3.500m
Nahversorgung
Supermarkt <500m
Bäckerei <1.000m
Einkaufszentrum <2.000m
Sonstige
Geldautomat <1.000m
Bank <1.000m
Post <1.000m
Polizei <2.500m
Verkehr
Bus <500m
Straßenbahn <1.000m
Autobahnanschluss <2.500m
Bahnhof <2.000m
Flughafen <8.000m
Angaben Entfernung Luftlinie / Quelle: OpenStreetMap
Eckdaten
| Kaufpreis: | 700.000,00 € |
| Fläche: | 120,00 m² |
| Zimmer: | 5 |
Basisdaten zur Immobilie
| Objektnr: | 3274 |
| Art: | Haus - Einfamilienhaus |
| Land: | Österreich |
| Baujahr: | 1955 |
| Zustand: | Gepflegt |
| Kaufpreis: | 700.000,00 € |
| Provision: | 3% des Kaufpreises zzgl. 20% USt. |
| Betriebskosten: | 185,32 € |
| MwSt Gesamt: | 18,53 € |
| Nutzfläche: | 120,00 m² |
| Grundstücksfl.: | 1.371,00 m² |
| Zimmer: | 5 |
| Bäder: | 2 |
| WC: | 2 |
| Balkone: | 1 |
| Heizwärmebedarf: | C 50,30 kWh/m²a |
| fGEE: | 1,44 |
Ausstattung
Fliesen, Laminatboden, Einbauküche, Bad mit Fenster, Parkplatz, Garage
Internet und TV
Information zur Internet und TV Versorgung hier
Ihre persönliche Beratung
Daniela Fallmann
Immo Circle GesBR
d.fallmann@immo-circle.at
+43 664 4220866
+43 664 4220866
