U1-NÄHE REUMANNPLATZ | RUHIG GELEGENE GARÇONNIÈRE | IDEALE STARTWOHNUNG
Wohnung
,
1100
Wien
,
Neusetzgasse
Lage der Immobilie
Reumannplatz, Kirche St. Anton von PaduaBeschreibung der Immobilie
Freundliche 1-Zimmer-Wohnung in ruhiger Lage nahe Reumannplatz & U1!
Zum Verkauf steht eine freundliche, helle 1-Zimmer-Wohnung in attraktiver Lage im 10. Wiener Gemeindebezirk. Die Wohnung befindet sich in einer ruhigen Seitengasse, nur wenige Gehminuten vom Reumannplatz entfernt – und eignet sich ideal als Starterwohnung!
Die Wohnung liegt in einem gepflegten und schönen Gründerzeithaus, das mit seinem klassischen Wiener Altbau-Charme überzeugt.
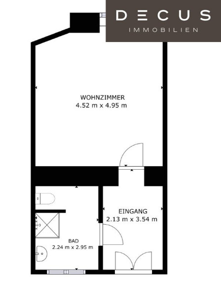
Die Raumaufteilung ist praktisch gestaltet: Über den Vorraum bzw. Eingangsbereich gelangt man in das Badezimmer, welches mit Dusche, WC und Handwaschbecken ausgestattet ist. Wichtig zu erwähnen ist, dass die Wohnung ohne Küche verkauft wird. Dadurch bietet sich Ihnen die ideale Möglichkeit, Ihre Küche ganz nach eigenen Vorstellungen und Bedürfnissen zu gestalten – modern, platzsparend oder mit maximalem Stauraum. Die Küchenanschlüsse befinden sich direkt im Eingangsbereich und sind nach Betreten der Wohnung auf der rechten Seite.
Herzstück der Wohnung ist der helle Wohnraum mit angenehmer Atmosphäre. Das Fenster des Wohnraumes ist in den begrünten Vorgarten gerichtet, wodurch eine besonders ruhige Wohnqualität entsteht.
Die Beheizung erfolgt über eine Gasetagenheizung (Befeuerung: Gas).
Auch die Lage und Infrastruktur überzeugen: Die U1-Station Reumannplatz ist in wenigen Minuten zu Fuß erreichbar und ermöglicht eine schnelle Verbindung ins Stadtzentrum sowie zum Hauptbahnhof. Ebenso gelangen Sie bequem in Richtung Erholungsgebiet und Thermalbad Oberlaa. In der nahegelegenen Fußgängerzone Favoritenstraße finden sich zahlreiche Einkaufsmöglichkeiten, Cafés, Restaurants sowie alle Einrichtungen des täglichen Bedarfs – von Supermärkten über Apotheken bis hin zu Banken und weiteren Dienstleistern.
Eine Wohnung mit Potenzial – ruhig gelegen und dennoch hervorragend angebunden.
Ich freue mich auf Ihre Anfrage und stehe für weitere Informationen oder einen Besichtigungstermin gerne zur Verfügung!
Wir weisen darauf hin, dass zwischen dem Vermittler und dem zu vermittelnden Dritten ein familiäres oder wirtschaftliches Naheverhältnis besteht.
Der Vermittler ist als Doppelmakler tätig.
DECUS Immobilien GmbH – Wir beleben Räume
Für weitere Informationen und Besichtigungen steht Ihnen gerne Frau Anna-Lena Halbeisen unter der Mobilnummer +43 699 112 08 411und per E-Mail unter halbeisen@decus.at persönlich zur Verfügung.
www.decus.at | office@decus.at
Wichtige Informationen
Bitte beachten Sie, dass per 13.06.2014 eine neue Richtlinie für Fernabsatz- und Auswärtsgeschäfte in Kraft getreten ist.
Ab 1.4.2024 entfallen die Grundbuchs- und Pfandrechtseintragungsgebühren vorübergehend für Eigenheime bis zu einer Bemessungsgrundlage von EUR 500.000,-. Voraussetzung ist das dringende Wohnbedürfnis, ausgenommen davon sind vererbte oder geschenkte Immobilien. Die Befreiung ist jedoch für den Einzelfall zu prüfen, DECUS Immobilien übernimmt hierzu keine Haftung.
Ab 01.07.2023 gilt das Erstauftraggeber-Prinzip bei Wohnungsmietverträgen, ausgenommen davon sind Dienst-/Natural-/Werkswohnungen. Wir dürfen gem. § 17 Maklergesetz darauf hinweisen, dass wir auf die Doppelmaklertätigkeit gem. § 5 Maklergesetz bei Wohnungsmietverträgen verzichten und nur noch einseitig tätig sind (bei den restlichen Vermittlungsarten nicht) und ein wirtschaftliches Naheverhältnis zu unseren Auftraggebern besteht.
Im Falle eines Abschlusses mit Ihnen oder einem von Ihnen namhaft gemachten Dritten bzw. bei beidseitiger Willensübereinstimmung beträgt unser Honorar (lt. Honorarverordnung für Immobilienmakler) 2 Bruttomonatsmieten (BMM) bei Dienst-/Natural-/Werkwohnungen sowie Suchaufträgen, 3 BMM bei Gewerbe-, PKW-, Keller- und Lagermietverträgen sowie bei Kaufobjekten 3 % des Kaufpreises, zuzüglich der gesetzlichen Umsatzsteuer.
Dieses Objekt wird Ihnen unverbindlich und freibleibend angeboten. Oben angeführte Angaben basieren auf Informationen und Unterlagen des Eigentümers und sind unsererseits ohne Gewähr.
Nähere Informationen sowie unsere AGBs und die Nebenkostenübersichtsblatt finden Sie auf unserer Homepage www.decus.at unter "Service" - "Rechtliches zum FAGG" sowie im Anhang der zugesendeten Objekt-Exposés!
Infrastruktur / Entfernungen
Gesundheit
Arzt <250m
Apotheke <250m
Klinik <500m
Krankenhaus <2.000m
Kinder & Schulen
Schule <250m
Kindergarten <500m
Universität <750m
Höhere Schule <2.500m
Nahversorgung
Supermarkt <250m
Bäckerei <250m
Einkaufszentrum <1.250m
Sonstige
Geldautomat <250m
Bank <250m
Post <500m
Polizei <1.000m
Verkehr
Bus <250m
U-Bahn <250m
Straßenbahn <250m
Bahnhof <250m
Autobahnanschluss <1.250m
Angaben Entfernung Luftlinie / Quelle: OpenStreetMap
Eckdaten
| Kaufpreis: | 134.900,00 € |
| Fläche: | 35,05 m² |
| Zimmer: | 1 |
Basisdaten zur Immobilie
| Objektnr: | 1151779 |
| Art: | Wohnung |
| Land: | Österreich |
| Baujahr: | 1900 |
| Alter: | Altbau |
| Kaufpreis: | 134.900,00 € |
| Provision: | 3% des Kaufpreises zzgl. 20% USt. |
| Betriebskosten: | 86,46 € |
| MwSt Gesamt: | 8,65 € |
| Wohnfläche: | 35,05 m² |
| Zimmer: | 1 |
| Bäder: | 1 |
| WC: | 1 |
| Heizwärmebedarf: | E 154,40 kWh/m²a |
| fGEE: | D 2,27 |
Ausstattung
Fliesen, Gas, Etagenheizung, Personenaufzug, Dusche
Internet und TV
Information zur Internet und TV Versorgung hier
Ihre persönliche Beratung
Anna-Lena Halbeisen
DECUS Immobilien GmbH
halbeisen@decus.at
+43 699 112 08 411
+43 699 112 08 411
F +43 1 35 600 10
