Immobilie merken

Provisionsfrei | Wunderschönes Reihenhaus beim Badeteich | großer Eigengarten | 2 Stellplätze

Haus - Reihenhaus, 1140 Wien

Beschreibung der Immobilie

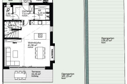
Allgemein: Auf einem wunderschönen Grundstück im Herzen Mauerbachs kommen ab sofort 20 fertiggestellte Reihenhäuser zum Verkauf. Am westlichen Rand, und nur wenige Minuten von der Wiener Stadtgrenze entfernt gelegen, grenzt es zudem unmittelbar an den Wienerwald. Bei der Balancierung von Freiflächen und bebauten Arealen wurde darauf geachtet, so viel wie möglich an Grün zu bewahren. Naturnähe, Ruhe und hohe Lebensqualität haben oberste Priorität. Die Zielsetzung war es, ein grünes Wohnidyll zu schaffen, in dem man das Leben genießen kann. Um dieses Wohngefühl zu erzielen, war für uns besonders wichtig, dass sich die Architektur der einzelnen Häuser nahtlos in die Natur einfügt. Erreicht haben wir das unter anderem durch die teilweise Holzverkleidung der Gebäude und Begrünung der Dachflächen. Das Haus 3.3 besticht besonders durch seine unmittelbare Lage beim einladenden Badeteich. Eine Übersicht sämtlicher verfügbaren Häuser erhalten Sie selbstverständlich auf Anfrage! Facts: • Grundstücksgröße rund 17.000 m² • 23 noch verfügbare Reihenhäuser im Eigentum • ab € 599.000,- • ca. 150 m² Wohnfläche • bis zu 350 m² Garten • nachhaltiges und kostengünstiges Heizen und Kühlen mittels Luftwärmepumpe • Badeteich, sowie Fitness- und Workout-Area • je Haus 2 PKW-Stellplätze Fertigstellung: Ende 2025 Ausstattung Die Liebe zum Detail zieht sich durch alle Bereiche und basiert auf ausgewählten Materialien und hochwertigen Markenprodukten. Elegante Parkettböden in allen Wohn- und Schlafräumen, Innentüren weiß matt mit Holzzarge bzw. Glastüren, großzügige Terrasse im Erdgeschoß mit Kaltwasseranschluss und Außenbeleuchtung, Terrasse im Dachgeschoß mit beeindruckender Aussicht, großformatige Fliesen (60 x 60 cm) in den Sanitärbereichen, Badewannen mit Markenarmaturen, bodenbündige Duschen, sämtliche Häuser werden vollständig mit Raffstores ausgestattet und noch vieles mehr... Zusatzausstattung Haus 3.3: • Insektenschutzgitter bei sämtlichen Fenstern • Anschlüsse für eine Outdoorküche im Garten Aufteilung der Hauses 3.3 > Großzügige Wohnküche > 4 Schlafzimmer > 2 Bäder mit WC > 1 separates WC im EG > 2 Abstellräume > 1 Storage (4,55m²) > 2 Stellplätze > 102,19m² Garten >Terrasse (15,25m) >Dachterrasse (18,45m²) Lage & Infrastruktur: Die waldreiche Landschaft ringsum wird von zahlreichen Wanderwegen und Radstrecken durchzogen. Sämtliche Nahversorger befinden sich in unmittelbarer Nähe. Die Wiener Stadtgrenze passieren Sie mit dem PKW in nur 4 Minuten und mit den öffentlichen Verkehrsmitteln in lediglich 9 Minuten. In den ersten Bezirk brauchen Sie mit Bus und Schnellbahn gerade einmal 45 Minuten. Der Busbahnhof befindet sich nur wenige Gehminuten entfernt.

Eckdaten

Kaufpreis: 689.000,00 €
Fläche: 150,00 m²
Zimmer: 5

Basisdaten zur Immobilie

Objektnr: 141/84889
Art: Haus - Reihenhaus
Land: Österreich
Baujahr: 2025
Alter: Neubau
Kaufpreis: 689.000,00
Wohnfläche: 150,00 m²
Zimmer: 5
Bäder: 2
WC: 1
Terrassen: 2
Heizwärmebedarf:  B  25,04 kWh/m²a
fGEE:  A+  0,63

Internet und TV

Information zur Internet und TV Versorgung hier




Immobilie anfragen




Ihre persönliche Beratung

Rustler Immobilientreuhand

Timo Kohlweiss

Rustler Immobilientreuhand

kohlweiss@rustler.eu

+43 1 8949749683

+43 676 834 34 683


Rustler Immobilientreuhand - Immobilen Makler

Mariahilfer Straße 196/Eingang Lehnergasse 3, 1150 Wien

https://www.rustler.eu